Prix
340 000€
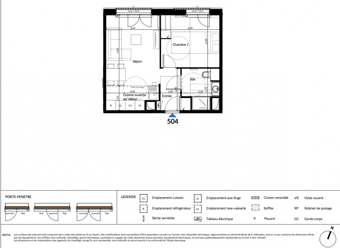
Type
Appt. au 5ème
Pièces
T2
Surface
42.72 m²
Exposition
Nord
Ville
Saint-Ouen (93400)
Livraison
2ème trimestre 2028
Informations
01 81 80 39 10

Présentation du programme "Folia"

Grand Lancement à Saint-Ouen - Résidence Folia Appartements neufs du 2 au 5 pièces avec espaces extérieurs privatifs Devenez propriétaire au coeur du nouvel écoquartier des Docks de Saint-Ouen grâce à nos offres de lancement exceptionnelles ! Découvrez Folia, une résidence élégante au design végétal, composée de 41 appartements du 2 au 5 pièces, dont de nombreux duplex avec vastes terrasses plein ciel. Les logements s'ouvrent sur des balcons, terrasses ou loggias, et la résidence bénéficie d'un coeur d'îlot paysager prolongé par un parc public, véritable havre de nature en ville. Prestations haut de gamme : • Parquet en chêne contrecollé dans les pièces de vie • Terrasses en lames de bois • Placards aménagés • Menuiseries bois/aluminium • Volets roulants motorisés • Salles d'eau équipées avec receveur extraplat, robinetterie thermostatique, sèche-serviettes, etc. • Local à vélos et poussettes, parking en sous-sol • Collecte pneumatique des déchets pour plus de confort Un emplacement stratégique, connecté et vivant ; située au coeur des Docks, à quelques pas des bords de Seine, Folia profite d'un cadre de vie exceptionnel : • Écoles, crèches, commerces et équipements à proximité immédiate • Parc de 12 hectares au coeur de l'écoquartier • Très bonne desserte : Métro lignes 13 et 14, RER C, bus • À 3 min de Paris-Porte de Clichy et 11 min de Saint-Lazare Idéal pour habiter et investir à des prix exceptionnels ! Contactez-nous sans plus attendre au 01 88 33 13 10 pour plus d'informations !

Autres logements T2 du programme "Folia"

Disponibilité Prix Genre Pièces Surface Étage
Voir
Optionné
335 000€ Appt. T2 42.72m2 4ème
Voir
Disponible
335 000€ Appt. T2 42.72m2 4ème
DO NOT CLICK