259 222€
Appt. au 1er
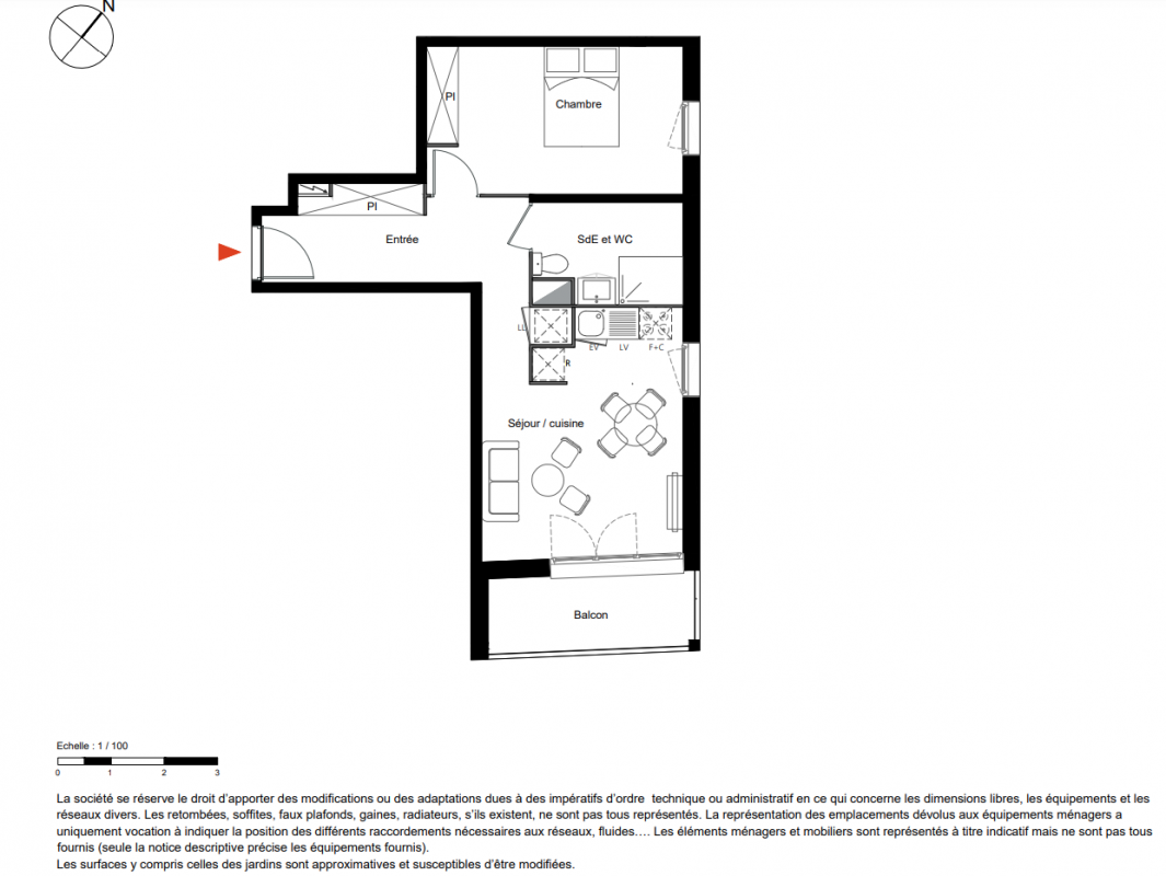
T2
45.04 m²
-
Argenteuil (95100)
2ème trimestre 2028
01 81 80 39 10
Présentation du programme "LE CLOS DE L'ABBAYE"
Idéalement située sur le boulevard Héloïse, la résidence Le Clos de l’Abbaye s’inscrit avec harmonie dans un environnement riche d’histoire et de nature. Bordée par le jardin public de l’Abbaye et à quelques pas des berges de la Seine, la résidence offre un cadre de vie apaisant, entre patrimoine végétal et proximité urbaine.
La résidence se compose de 41 logements : 3 villas T5, et 38 appartements du T2 au T5. Les grandes terrasses en attique offrent une vue dégagée sur la Seine et Paris.
L’architecture du Clos de l’Abbaye mêle des matériaux nobles et durables – briques de réemploi et pierres, ossature bois, parements en pierre – et fait la part belle aux espaces végétalisés : pergolas ombragées et haies fruitières prolongent l’ambiance naturelle du jardin de l’Abbaye jusque dans les cheminements de la résidence.
L'ensemble est structuré autour d’une venelle piétonne ouverte en journée, offrant une liaison douce entre le boulevard et le jardin public, tout en favorisant une circulation apaisée et respectueuse du cadre environnant.
La résidence compte un parking en sous-sol pour la sécurité et le confort de tous.
Autres logements T2 du programme "LE CLOS DE L'ABBAYE"
| Disponibilité | Prix | No | Genre | Pièces | Surface | Étage | Disponibilité | Prix | ||
|---|---|---|---|---|---|---|---|---|---|---|
| Voir | Disponible | 281 971€ | A3.01 | Appt. | T2 | 45.04m2 | 3ème | Disponible | 281 971€ | Voir |
| Voir | Disponible | 270 597€ | B0.03 | Appt. | T2 | 44.28m2 | 0-RDC | Disponible | 270 597€ | Voir |
| Voir | Disponible | 267 184€ | B0.04 | Appt. | T2 | 43.57m2 | 0-RDC | Disponible | 267 184€ | Voir |
| Voir | Disponible | 264 909€ | B0.05 | Appt. | T2 | 42.83m2 | 0-RDC | Disponible | 264 909€ | Voir |
| Voir | Optionné | 266 047€ | B1.02 | Appt. | T2 | 41.06m2 | 1er | Optionné Mais pas encore vendu 😉 | 266 047€ | Voir |
| Voir | Disponible | 274 009€ | B1.04 | Appt. | T2 | 44.53m2 | 1er | Disponible | 274 009€ | Voir |
| Voir | Disponible | 270 597€ | B3.02 | Appt. | T2 | 40.81m2 | 3ème | Disponible | 270 597€ | Voir |
| Voir | Disponible | 264 909€ | B3.04 | Appt. | T2 | 44.53m2 | 3ème | Disponible | 264 909€ | Voir |
| Voir | Disponible | 268 322€ | A2.03 | Appt. | T2 | 40.79m2 | 2ème | Disponible | 268 322€ | Voir |