249 327€ (TVA 20%)
219 200€ (TVA 5.5%)
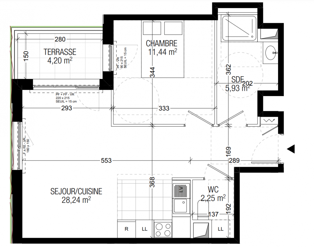
Appt. au 0-RDC
-
47.86 m²
-
Argenteuil (95100)
4ème trimestre 2027
01 81 80 39 10
Présentation du programme "Sileo"
ÉLIGIBLE au dispositif Jeanbrun
DEVENEZ PROPRIETAIRE AVEC LA TVA réduite à 5.5% au lieu de 20%
La résidence Sileo, bénéficie d'un emplacement stratégique au coeur du quartier du Val Notre-Dame.
Emplacement idéal à moins de 300 mètres avec tous les commerces de proximité pharmacie, boulangerie, coiffeur, pressing, tabac, la poste, etc ainsi que son marché avec ses produits frais.
Cette résidence profite de la proximité de divers établissements scolaires et des services de santé.
Alliant matériaux de qualité et conception moderne, Sileo est idéal pour la famille comme les actifs par sa proximité et son accessibilité, le bus ligne 9 au pied de la résidence qui permet de rejoindre la gare Argenteuil en 18 min, desservit par la ligne J pour aller à Saint Lazare en 27 min, possibilité de récupérer également le RER A avec le bus ligne 9 pour aller à la gare de Sartrouville (RER A) en 26 min.
Son architecture gagnée en concours, comporte une venelle paysagée privative reliant l'avenue Jean Jaurès à la rue de l'Union, permettant une circulation agréable et facile pour ses résidents.
Argenteuil offre un cadre dynamique aux portes de Paris tout en restant paisible.
Ses quartiers variés, ses berges de Seine et ses parcs séduisent les familles. Bien desservie par les transports, la ville dispose aussi d'écoles, médiathèques et équipements sportifs. Son ambiance conviviale renforce son attrait résidentiel.
Les prix affichés tiennent compte de la TVA 5.5%. Voir conditions auprès de nos conseillers
Autres logements - du programme "Sileo"
| Disponibilité | Prix | No | Genre | Pièces | Surface | Étage | Disponibilité | Prix | ||
|---|---|---|---|---|---|---|---|---|---|---|
| Voir | Disponible | 237 839€ | D006 | Appt. | - | 43.97m2 | 0-RDC | Disponible | 237 839€ | Voir |
| Voir | Disponible | 315 754€ | D008 | Appt. | - | 63.83m2 | 0-RDC | Disponible | 315 754€ | Voir |
| Voir | Disponible | 319 507€ | D102 | Appt. | - | 64.38m2 | 1er | Disponible | 319 507€ | Voir |
| Voir | Disponible | 336 682€ | D103 | Appt. | - | 67.24m2 | 1er | Disponible | 336 682€ | Voir |
| Voir | Optionné | 232 265€ | D106 | Appt. | - | 42.12m2 | 1er | Optionné Mais pas encore vendu 😉 | 232 265€ | Voir |
| Voir | Disponible | 330 995€ | D202 | Appt. | - | 63.22m2 | 2ème | Disponible | 330 995€ | Voir |
| Voir | Disponible | 339 526€ | D203 | Appt. | - | 63.88m2 | 2ème | Disponible | 339 526€ | Voir |
| Voir | Disponible | 349 991€ | D205 | Appt. | - | 67.85m2 Le bon plan | 2ème | Disponible | 349 991€ | Voir |
| Voir | Disponible | 325 308€ | D206 | Appt. | - | 64.54m2 | 2ème | Disponible | 325 308€ | Voir |
| Voir | Disponible | 236 929€ | D207 | Appt. | - | 43.33m2 | 2ème | Disponible | 236 929€ | Voir |
| Voir | Disponible | 315 754€ | D305 | Appt. | - | 60.66m2 | 3ème | Disponible | 315 754€ | Voir |
| Voir | Disponible | 330 995€ | D306 | Appt. | - | 64.3m2 | 3ème | Disponible | 330 995€ | Voir |
| Voir | Disponible | 240 796€ | D307 | Appt. | - | 43.33m2 | 3ème | Disponible | 240 796€ | Voir |
| Voir | Disponible | 344 303€ | D401 | Appt. | - | 63.41m2 | 4ème | Disponible | 344 303€ | Voir |
| Voir | Disponible | 343 393€ | D403 | Appt. | - | 64.65m2 | 4ème | Disponible | 343 393€ | Voir |
| Voir | Disponible | 245 118€ | D302 | Appt. | - | 43.64m2 | 3ème | Disponible | 245 118€ | Voir |