Ce lot n’est plus disponible chez VIANOVA ou est vendu.

Vous pouvez revenir dans 24h pour vérifier le stock à jour ou contacter un conseiller Vianova pour vérifier le stock en direct.
Vous pouvez également continuer votre recherche sur notre site « ici ».

Prix
389 000€
Type
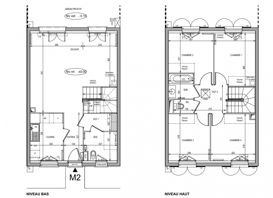
Maison au 0-RDC
Pièces
T5
Surface
93.05 m²
Exposition
Ouest
Ville
Méry-sur-Oise (95540)
Livraison
1er trimestre 2028
Informations
01 81 80 39 10

Présentation du programme "RESIDENCE MADRIA"

À Méry-sur-Oise, avec Vianova ACCESS pour la 1ère fois vous pouvez devenir propriétaire de votre appartement neuf !

Entre ancrage historique et pleine nature, découvrez une adresse à l’art de vivre parfait, au cœur d’une commune paisible des rives de l’Oise. À seulement 350 mètres de la gare et 40 minutes de Paris, votre résidence neuve marie avec finesse pierre meulière authentique et prestations contemporaines.

Son généreux domaine paysager s’articule autour d’un espace boisé classé et de vastes jardins partagés, au cœur de l’espace. Huit maisons familiales avec jardins privatifs et des appartements modulables du studio au 4 pièces offrent des espaces de vie pensés pour votre bien-être. Orientations traversantes, terrasses généreuses, suite parentale ou plan modulable: trouvez l’intérieur qui vous ressemble. L'environnement privilégié conjugue praticité urbaine et sérénité champêtre, avec commerces, école et parc du Château accessibles à pied.

Autres logements T5 du programme "RESIDENCE MADRIA"

Disponibilité Prix Genre Pièces Surface Étage
Voir
Optionné
389 000€ Maison T5 93.05m2
Le bon plan
0-RDC
Voir
Disponible
439 000€ Maison T5 93.51m2 0-RDC
Voir
Disponible
423 000€ Maison T5 93.51m2 0-RDC
Voir
Optionné
409 000€ Maison T5 93.39m2 0-RDC
DO NOT CLICK