Prix
506 161€ (TVA 20%)
445 000€ (TVA 5.5%)
506 161€ (TVA 20%)
445 000€ (TVA 5.5%)
Type
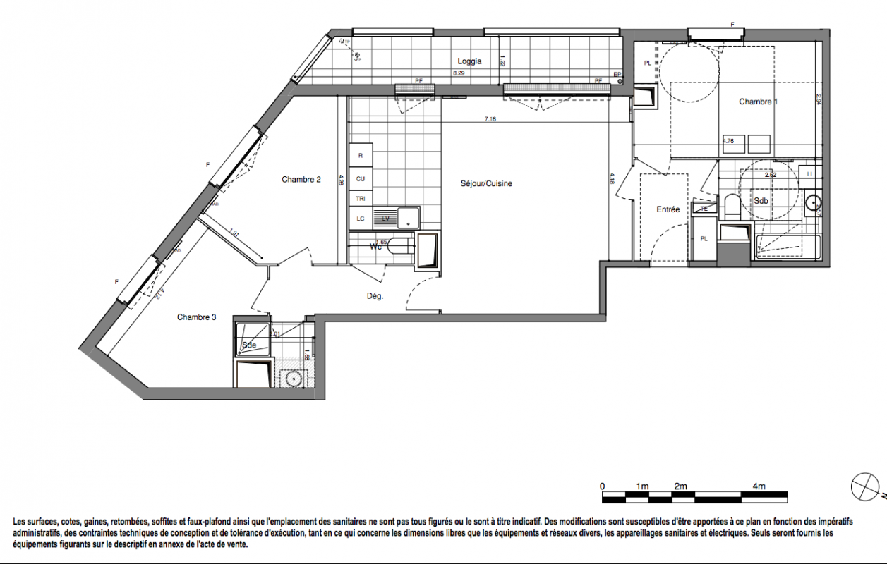
Appt. au 0-RDC
Appt. au 0-RDC
Pièces
T4
T4
Surface
89.9 m²
89.9 m²
Exposition
-
-
Ville
Alfortville (94140)
Alfortville (94140)
Livraison
4ème trimestre 2025
4ème trimestre 2025
Informations
01 81 80 39 10
01 81 80 39 10
Présentation du programme "UNIVERT"
À quelques pas de la gare du Vert de Maisons (RER D et futur métro 15), le programme immobilier neuf UNIVERT profite d’un cadre de vie repensé, réunissant commerces, allées paysagères et équipements publics.Réalisation immobilière d’envergure, la résidence UNIVERT vous propose un large choix d’appartements neufs, du studio au 5 pièces duplex avec balcon, loggia ou terrasse.