Prix
444 483€  (TVA 20%)
390 775€  (TVA 5.5%)
Type
Appt. au 0-RDC
Pièces
T3
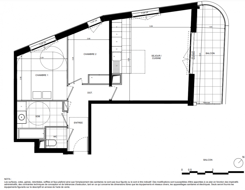
Surface
63.9 m²
Exposition
-
Ville
L'Haÿ-les-Roses (94240)
Livraison
1er trimestre 2028
Informations
01 81 80 39 10

Présentation du programme "Millerose"

 Au pied de la nouvelle station de métro 14, découvrez Millerose. Cette superbe réalisation affiche une architecture élégante où se succèdent de magnifiques terrasses en cascade, aux formes organiques et végétales qui font échos au cœur d’îlot paysager. Les appartements du studio au 5 pièces, dont des duplex, offrent un confort absolu et sont pour la plupart prolongés par un balcon ou une large terrasse jusqu’à 172 m2.Millerose bénéficie d’un emplacement privilégié au cœur du quartier Lallier : face à la gare, sa place animée avec ses commerces et restaurants, et à proximité des écoles.Eligible à la TVA réduite à 5,5% pour l'achat d'une résidence principale ! 

Autres logements T3 du programme "Millerose"

Disponibilité Prix Genre Pièces Surface Étage
Voir
Disponible
545 374€ Appt. T3 76.5m2 0-RDC
DO NOT CLICK