Prix
324 900€
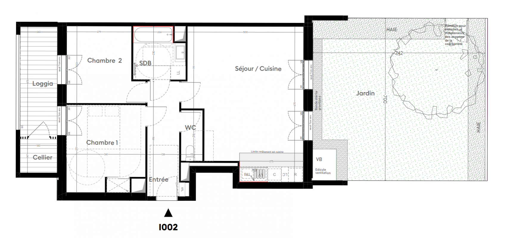
Type
Appt. au 0-RDC
Pièces
T3
Surface
66.11 m²
Exposition
-
Ville
Orly (94310)
Livraison
2ème trimestre 2028
Informations
01 81 80 39 10

Présentation du programme "LES JARDINS DU PELVOUX"

FRAIS DE NOTAIRE OFFERTS + REMISE DE 3 000 EUROS PAR PIECE*

Située Chemin des Carrières, au coeur de la ZAC en plein développement, la résidence s'inscrit dans un environnement en devenir mêlant logements, commerces et espaces publics paysagers. À proximité du Vieil-Orly et des transports, l'adresse facilite le quotidien.

La résidence propose des appartements du studio au 5 pièces, adaptés aux besoins des célibataires, couples et familles.

Organisée autour d'un jardin central, la résidence privilégie une architecture à taille humaine avec des bâtiments de 2 à 4 étages. Les façades aux teintes sobres et naturelles s'intègrent harmonieusement dans leur environnement, dans un esprit résidentiel apaisé.

Les appartements offrent des espaces de vie lumineux, souvent traversants ou bi-orientés, avec de belles hauteurs sous plafond. Tous se prolongent par des espaces extérieurs : loggias, terrasses ou jardins privatifs pouvant atteindre de belles surfaces, pensés comme de véritables pièces de vie.

Les + du programme :
•Jardin paysager central avec plus de 1 400 m² de nature
•Espaces extérieurs pour chaque logement
•Stationnements en sous-sol et locaux vélos
•Résidence à taille humaine favorisant l'intimité
•Certification NF Habitat HQE et RE2020

Au quotidien, profitez d'un environnement pratique et connecté :
•Écoles, crèche et commerces à proximité
•Marché du Vieil-Orly accessible à pied
•Bus au pied de la résidence vers RER C et métro 14
•Accès rapide à Paris (environ 16 minutes via la ligne 14)

Un cadre de vie équilibré entre dynamisme urbain et nature, idéal pour habiter ou investir dans un secteur en pleine évolution.

Contactez-nous dès maintenant au 01 87 52 25 22 pour en savoir plus et découvrir les logements disponibles.

Autres logements T3 du programme "LES JARDINS DU PELVOUX"

Disponibilité Prix Genre Pièces Surface Étage
Voir
Disponible
308 900€ Appt. T3 61.35m2 0-RDC
Voir
Disponible
312 900€ Appt. T3 61.36m2 2ème
Voir
Disponible
316 900€ Appt. T3 62.16m2 1er
Voir
Disponible
299 900€ Appt. T3 62.77m2 1er
Voir
Disponible
347 900€ Appt. T3 62.87m2 2ème
Voir
Disponible
314 900€ Appt. T3 65.96m2 2ème
Voir
Disponible
314 900€ Appt. T3 65.96m2 1er
Voir
Disponible
324 900€ Appt. T3 66.9m2 0-RDC
Voir
Disponible
309 900€ Appt. T3 67.19m2 1er
Voir
Disponible
319 900€ Appt. T3 67.32m2 1er
Voir
Disponible
329 900€ Appt. T3 67.34m2 1er
Voir
Disponible
333 900€ Appt. T3 67.35m2 2ème
Voir
Disponible
355 900€ Appt. T3 69.59m2 3ème
Voir
Disponible
335 900€ Appt. T3 69.74m2 0-RDC
Voir
Disponible
326 900€ Appt. T3 69.98m2
Le bon plan
0-RDC
Voir
Disponible
329 900€ Appt. T3 70.57m2 2ème
Voir
Disponible
329 900€ Appt. T3 70.76m2 1er
Voir
Disponible
345 900€ Appt. T3 71.25m2 0-RDC
Voir
Disponible
346 900€ Appt. T3 71.76m2 2ème
Voir
Disponible
347 900€ Appt. T3 73.69m2 0-RDC
Voir
Disponible
349 900€ Appt. T3 74.79m2 1er
Voir
Disponible
353 900€ Appt. T3 74.79m2 2ème
Voir
Disponible
362 900€ Appt. T3 75.03m2 3ème
Voir
Disponible
340 900€ Appt. T3 77.35m2 3ème
DO NOT CLICK