Prix
346 000€
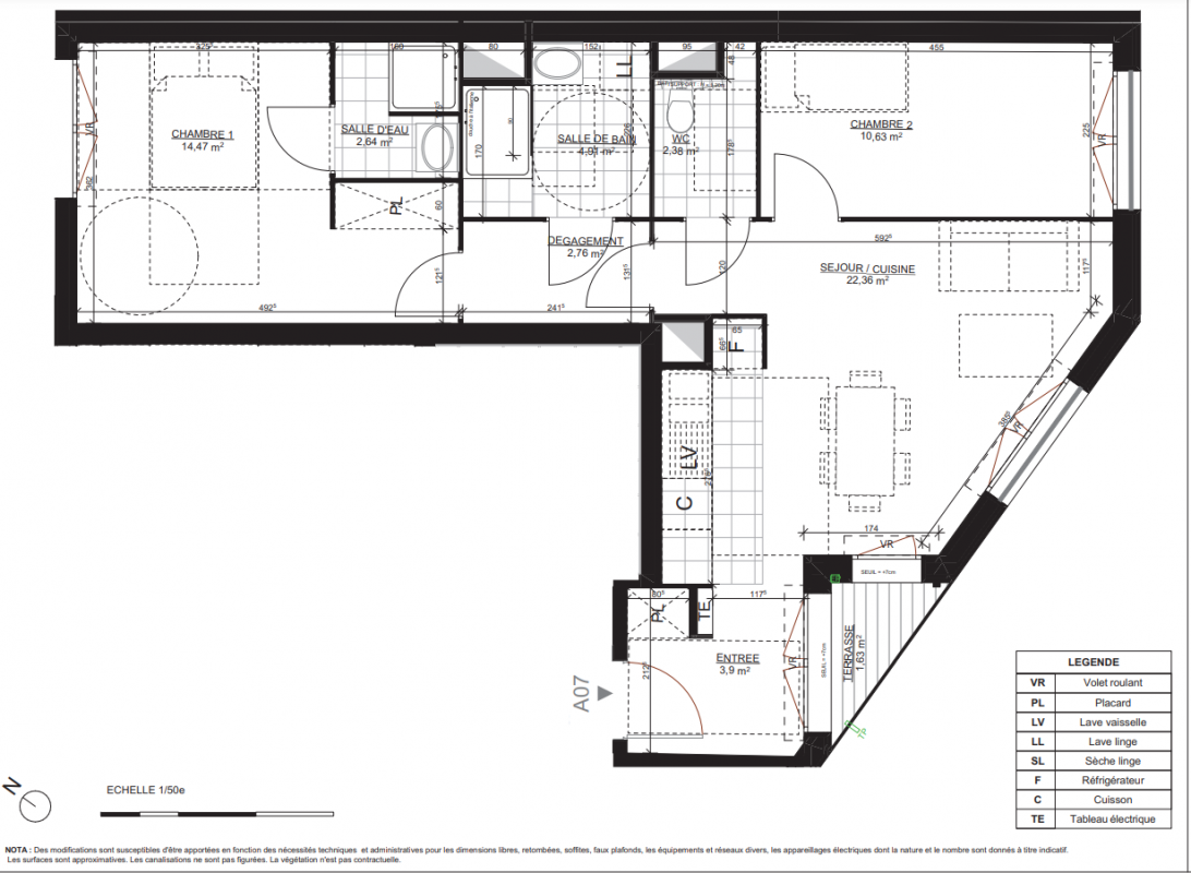
Type
Appt. au 2ème
Pièces
T3
Surface
64.05 m²
Exposition
-
Ville
Saint-Maur-des-Fossés (94100)
Livraison
3ème trimestre 2024
Informations
01 81 80 39 10

Présentation du programme "Les 2 Elegantes - ULI"

Ville cotée de l’Est parisien
Réputée pour son standing, Saint-Maur-des-Fossés séduit par sa douceur de vivre et sa situation privilégiée dans le prolongement de l’axe Paris-Vincennes-Joinville. Au détour des bâtisses bourgeoises, la ville dévoile un patrimoine remarquable et un environnement naturel unique par l’omniprésence de la Marne qui enlace la ville.


La dynamique du Grand Paris
Idéalement positionnée à 13 km de Paris, Saint-Maur bénéficie de l’attractivité des pôles économiques avoisinants. La ville se situe à une trentaine de minutes de Créteil Europarc et d’Orly-Rungis, premier bassin d’emplois du Sud-Est parisien fréquenté par quelque 70 000 salariés. Commune de la Métropole du Grand Paris parfaitement desservie, elle compte 4 stations de RER et accueillera d’ici 2025 la future ligne 15 du métro.


Un quartier cossu et animé
Nanti de commerces et connecté aux transports, Adamville est un secteur prisé qui offre toutes les commodités. Cet environnement d’une qualité résidentielle accueille “Les 2 Élégantes”, à 2 pas du square des Deux Lions.

Autres logements T3 du programme "Les 2 Elegantes - ULI"

Disponibilité Prix Genre Pièces Surface Étage
Voir
Disponible
335 000€ Appt. T3 63.06m2 2ème
DO NOT CLICK