Ce lot n’est plus disponible chez VIANOVA ou est vendu.
Vous pouvez revenir dans 24h pour vérifier le stock à jour ou contacter un conseiller Vianova pour vérifier le stock en direct.
Vous pouvez également continuer votre recherche sur notre site « ici ».
277 422€ (TVA 10%)
266 073€ (TVA 5.5%)
Appt. au 4ème
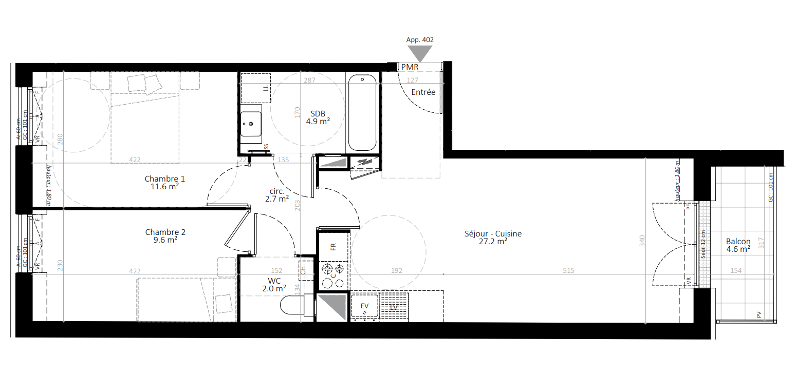
T3
58.1 m²
-
Villeneuve-Saint-Georges (94190)
2ème trimestre 2028
01 81 80 39 10
Présentation du programme "VILLA NOVA"
Localisation et potentiel marché : Le programme VILLA NOVA est situé à Villeneuve-Saint-Georges (94), à 15 km de la porte de Bercy, dans un secteur pavillonnaire recherché, calme et verdoyant. La commune bénéficie d'une forte accessibilité vers Paris, via le RER D (station Villeneuve-Triage - Paris Gare de Lyon en moins de 25 min), la RN6 et l'A86, ainsi que d'une proximité avec l'aéroport d'Orly.
Zone à demande résidentielle soutenue, portée par les actifs franciliens et les primo-accédants recherchant des prix plus accessibles aux portes de Paris.
Description de l'opération : Résidence neuve à taille humaine de 39 logements, du 2 au 4 pièces, avec surfaces généreuses jusqu'à 80 m². Implantation entre la rue Danton et la rue Gabriel Cordier, offrant un double accès et un environnement résidentiel qualitatif, à proximité immédiate des équipements sportifs et du coeur de ville.
Programme conforme à la RE 2020, garantissant performance énergétique, charges maîtrisées et pérennité patrimoniale.
Typologies et cibles commerciales :
- 2 pièces : primo-accédants solos ou jeunes couples.
- 3 pièces : coeur de cible résidence principale.
- 4 pièces : familles primo-accédantes recherchant un premier achat durable.
Tous les logements disposent d'un balcon (jusqu'à 9 m²) et de plans optimisés avec cuisines ouvertes.
Arguments de vente clés :
- Offre neuve rare en secteur pavillonnaire.
- Forte accessibilité Paris / Orly.
- Résidence sécurisée et qualitative.
- Espaces extérieurs privatifs sur l'ensemble des logements.
- Architecture soignée, matériaux durables, image patrimoniale.
- 43 places de stationnement et local vélos.
- Équipements et prestations
- Hall d'entrée avec patio.
- Façades en pierre, lucarnes stylisées.
- Garde-corps ajourés en acier.
- Volets battants bois sur certains bâtiments.
- Jardin paysager en coeur d'îlot.
- Sécurisation complète : digicode, vidéophone, porte palière renforcée.
Contexte urbain et services :
- Commerces et services de proximité accessibles à pied.
- Écoles, collèges et lycées dans la commune.
- Marché central et équipements culturels.
- Espaces verts et berges de Seine à proximité.
Grand lancement commercial les 17 et 18 janvier 2026.
Autres logements T3 du programme "VILLA NOVA"
| Disponibilité | Prix | No | Genre | Pièces | Surface | Étage | Disponibilité | Prix | ||
|---|---|---|---|---|---|---|---|---|---|---|
| Voir | Archivé | 271 735€ | 407 v1 | Appt. | T3 | 53.3m2 | 4ème | Archivé | 271 735€ | Voir |
| Voir | Archivé | 254 673€ | 209 | Appt. | T3 | 57.4m2 | 2ème | Archivé | 254 673€ | Voir |
| Voir | Archivé | 259 223€ | 309 | Appt. | T3 | 57.4m2 | 3ème | Archivé | 259 223€ | Voir |
| Voir | Archivé | 256 948€ | 201 | Appt. | T3 | 57.8m2 | 2ème | Archivé | 256 948€ | Voir |
| Voir | Archivé | 251 261€ | 301 | Appt. | T3 | 58.1m2 | 3ème | Archivé | 251 261€ | Voir |
| Voir | Archivé | 262 635€ | 202 | Appt. | T3 | 59.3m2 | 2ème | Archivé | 262 635€ | Voir |
| Voir | Archivé | 267 185€ | 302 | Appt. | T3 | 59.3m2 | 3ème | Archivé | 267 185€ | Voir |
| Voir | Archivé | 259 223€ | 102 | Appt. | T3 | 60.5m2 | 1er | Archivé | 259 223€ | Voir |
| Voir | Archivé | 259 223€ | 405 | Appt. | T3 | 61.4m2 | 4ème | Archivé | 259 223€ | Voir |
| Voir | Archivé | 260 360€ | 307 | Appt. | T3 | 66.1m2 Le bon plan | 3ème | Archivé | 260 360€ | Voir |
| Voir | Archivé | 287 659€ | 406 v1 | Appt. | T3 | 72.7m2 | 4ème | Archivé | 287 659€ | Voir |