Prix
204 000€
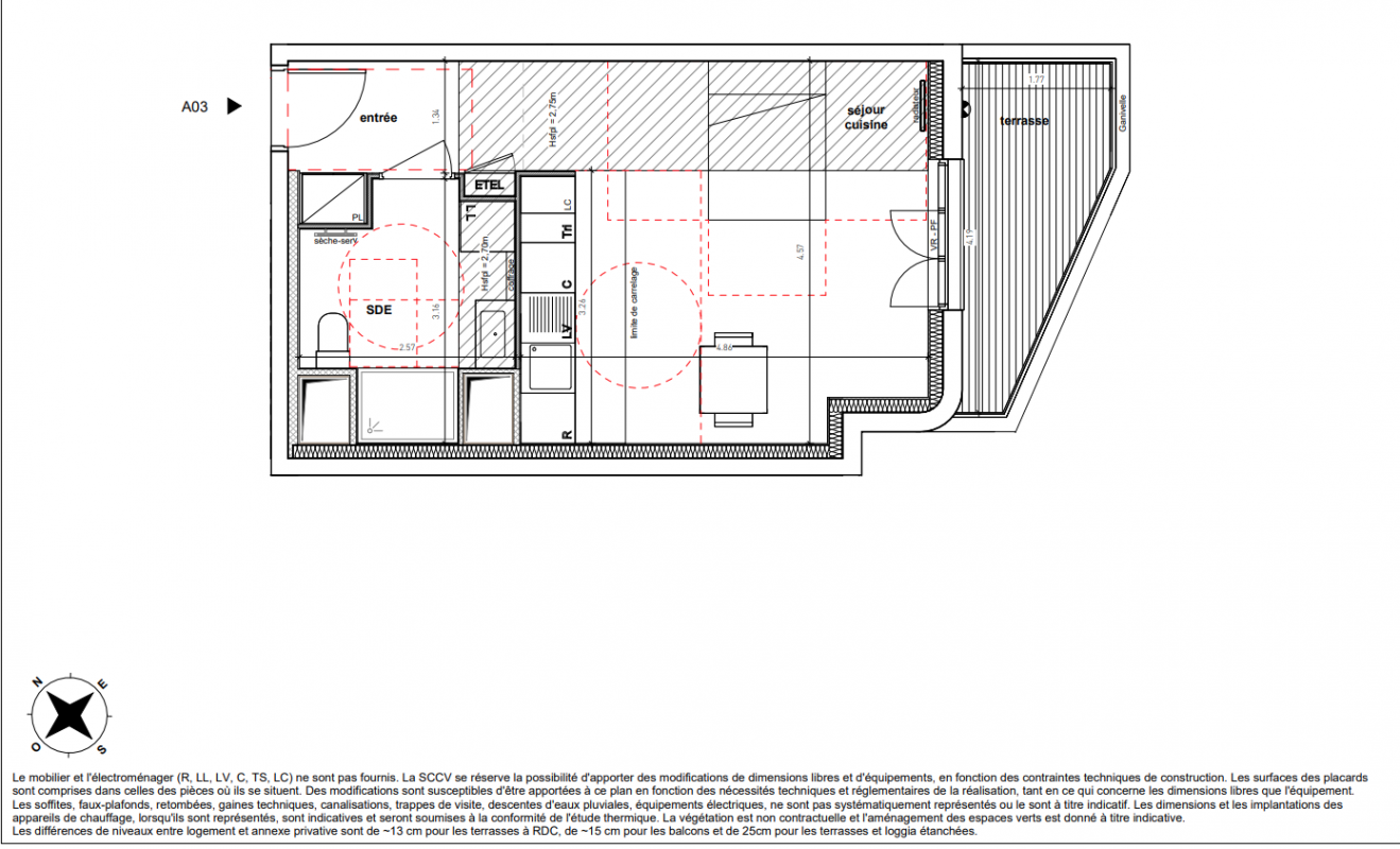
Type
Appt. au 0-RDC
Pièces
Studio
Surface
32 m²
Exposition
-
Ville
Poissy (78300)
Livraison
2ème trimestre 2028
Informations
01 81 80 39 10

Présentation du programme "LISLE LUMIERE"

Forte du succès de la première résidence Lisle Au Vert, la nouvelle réalisation Lisle Lumière s'inscrit dans la continuité de cet engagement en faveur d’un cadre de vie harmonieux et contemporain. Idéalement située au cœur de l’écoquartier Rouget-de-Lisle à Poissy, cette adresse bénéficie d’une connectivité optimale, permettant de rejoindre La Défense en 20 minutes* et Charles de Gaulle - Étoile en 26 minutes* grâce au RER A, tandis que la ligne Transilien J dessert la gare Saint-Lazare en seulement 22 minutes*. Cette résidence à l’architecture contemporaine propose une gamme variée d’appartements, du studio au 5 pièces duplex, conçus pour répondre à toutes les aspirations. Les séjours, baignés de lumière, offrent pour certains une belle double hauteur, créant ainsi une sensation d’espace remarquable. De généreux balcons et vastes terrasses prolongent ces espaces de vie, offrant des vues dégagées sur un parc arboré de 1,7 hectare, véritable écrin de verdure en cœur de ville. Ce cadre d’exception, évoluant au rythme des saisons, procure bien-être et sérénité au quotidien.

Autres logements Studio du programme "LISLE LUMIERE"

Pas de logements disponibles
DO NOT CLICK