325 000€
Appt. au 2ème
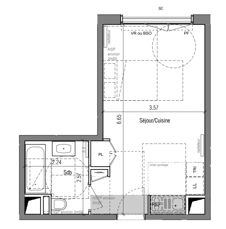
Studio
29.23 m²
Nord-Est
Saint-Germain-en-Laye (78100)
3ème trimestre 2028
01 81 80 39 10
Présentation du programme "Programme neuf Saint-Germain-en-Laye (78100)"
NOUVEAU à SAINT-GERMAIN-EN-LAYE! Soyez parmi les premiers à choisir votre appartement neuf ou votre maison sur les toits ! C'est dans la ville très cossue de Saint-Germain-en-Laye que Marignan, en association avec OGIC, dévoilent leur nouvelle réalisation, dans le cadre unique du nouveau quartier "Clos Saint-Louis", créé dans le prolongement du centre-ville, autour de l’ancien hôpital réhabilité. Menant au cœur battant du nouveau quartier, découvrez les appartements de grand standing de la résidence "Acte IV Résidences Ourches", pensés pour offrir des volumes généreux et lumineux. Soyez parmi les privilégiés à choisir votre futur bien immobilier, du studio au 5 pièces, à 850 m du RER A. Des maisons sur les toits, surplombant la vallée, prolongés de belles terrasses sauront rendre votre quotidien épatant ! Il fera bon vivre et se promener en toute sécurité dans ce vaste quartier, entièrement piéton et végétalisé, et profiter de l'animation des commerces, restaurants et nombreuses boutiques. Contactez vite un de nos conseillers pour découvrir tous nos logements neufs à SAINT-GERMAIN-EN-LAYE et soyez parmi les premiers à choisir le logement de vos rêves !
Autres logements Studio du programme "Programme neuf Saint-Germain-en-Laye (78100)"
| Disponibilité | Prix | No | Genre | Pièces | Surface | Étage | Disponibilité | Prix | ||
|---|---|---|---|---|---|---|---|---|---|---|
| Voir | Disponible | 285 000€ | 2A011 | Appt. | Studio | 33m2 | 0-RDC | Disponible | 285 000€ | Voir |
| Voir | Disponible | 315 000€ | 2A017 | Appt. | Studio | 31.7m2 | 0-RDC | Disponible | 315 000€ | Voir |
| Voir | Disponible | 305 000€ | 2A113 | Appt. | Studio | 28.2m2 | 1er | Disponible | 305 000€ | Voir |
| Voir | Disponible | 360 000€ | 2A315 | Appt. | Studio | 32.06m2 | 3ème | Disponible | 360 000€ | Voir |
| Voir | Disponible | 290 000€ | A012 | Appt. | Studio | 27.81m2 | 0-RDC | Disponible | 290 000€ | Voir |
| Voir | Disponible | 350 000€ | A013 | Appt. | Studio | 33.69m2 | 0-RDC | Disponible | 350 000€ | Voir |
| Voir | Disponible | 370 000€ | A111 | Appt. | Studio | 34.09m2 | 1er | Disponible | 370 000€ | Voir |
| Voir | Disponible | 365 000€ | A112 | Appt. | Studio | 33.63m2 | 1er | Disponible | 365 000€ | Voir |
| Voir | Disponible | 300 000€ | A113 | Appt. | Studio | 27.61m2 | 1er | Disponible | 300 000€ | Voir |
| Voir | Disponible | 315 000€ | A118 | Appt. | Studio | 29.23m2 | 1er | Disponible | 315 000€ | Voir |
| Voir | Disponible | 280 000€ | B117 | Appt. | Studio | 26.17m2 | 1er | Disponible | 280 000€ | Voir |
| Voir | Disponible | 320 000€ | B118 | Appt. | Studio | 29.99m2 | 1er | Disponible | 320 000€ | Voir |
| Voir | Disponible | 399 000€ | B311 | Appt. | Studio | 32.66m2 | 3ème | Disponible | 399 000€ | Voir |