Prix
305 800€
Type
Appt. au 1er
Pièces
T3
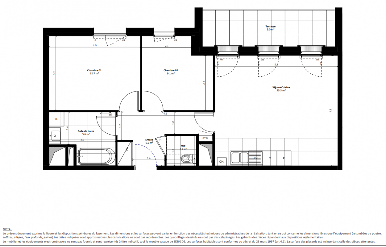
Surface
60.7 m²
Exposition
Nord
Ville
Cabourg (14390)
Livraison
3ème trimestre 2028
Informations
01 81 80 39 10

Présentation du programme "Le Domaine D'eugenie"

Vous souhaitez y habiter ? Vérifiez votre éligibilité au PTZ avec nos équipes ! Vous souhaitez le mettre en location ? Vous avez le choix entre de la location nue éligible au Statut du bailleur privé* ou meublée avec un pack gestionnaire. Contactez nos équipes pour une simulation. Habitez ou investissez à Cabourg : le charme authentique de la côte fleurie Station balnéaire réputée du Calvados, en Normandie, offrant un cadre de vie exceptionnel entre mer et nature.Ville au charme unique avec son centre néo-normand, ses maisons à colombages et la célèbre promenade Marcel Proust face à la mer.Qualité de vie remarquable : Cabourg séduit par son cadre exceptionnel entre mer et nature. Sa plage de sable fin, son centre de thalassothérapie et ses nombreuses infrastructures sportives et culturelles. Cabourg : une ville attractive et porteuseAttractivité économique : Située à proximité de Caen, la ville bénéficie d’un tissu économique dynamique porté par des filières variées (tourisme, nautisme, numérique) et par le pôle d’innovation MoHo.Dynamisme culturel : festivals, hippodrome, salle de spectacle, Casino, Grand Hôtel.Potentiel locatif renforcé par le label « Famille Plus », écoles, infrastructures sportives et de loisirs. Commodités et transportsÀ quelques pas des essentiels : 950 m du centre-ville, des halles du marché et de la plage, 700 m des commerces, et 3 min à pied des écoles et du stade Fernand Sastre.Accessibilité optimale : excellente desserte avec la gare de Dives-Cabourg à 4 minutes en voiture, offrant une liaison directe vers Paris Saint-Lazare. Les aéroports de Deauville et Caen se trouvent à 30 km et l’accès routier est facilité par l’autoroute A13 (sortie Dozulé). À 30 minutes de Caen et Deauville, à seulement 2h10 de Paris en voiture. Focus prestations/résidenceArchitecture soignée alternant style normand revisité et lignes contemporaines pour un ensemble harmonieux.Logements variés et confortables : appartements allant du T1 au T4 et offrant des prestations de qualité (isolation phonique ISONO, volets roulants, double vitrage, parquet stratifié, cuisines équipées).Espaces extérieurs et communs optimisés : jardins privatifs, balcons, rooftops, parkings et locaux vélos/poussettes pour un confort quotidien. Le + du programme Un cadre naturel exceptionnel : résidence intégrée dans un vaste parc paysager avec cheminements piétonniers, plans d’eau, faune et flore préservées. * Informations sous réserve de la publication du décret définitif

Autres logements T3 du programme "Le Domaine D'eugenie"

Disponibilité Prix Genre Pièces Surface Étage
Voir
Disponible
296 300€ Appt. T3 61.5m2
Le bon plan
3ème
Voir
Disponible
308 000€ Appt. T3 61m2 2ème
Voir
Disponible
309 400€ Appt. T3 62m2 3ème
Voir
Disponible
328 600€ Appt. T3 63.4m2 1er
Voir
Disponible
332 900€ Appt. T3 63.6m2 2ème
Voir
Disponible
351 200€ Appt. T3 68.4m2 1er
Voir
Disponible
355 700€ Appt. T3 68.7m2 2ème
DO NOT CLICK