Prix
148 000€
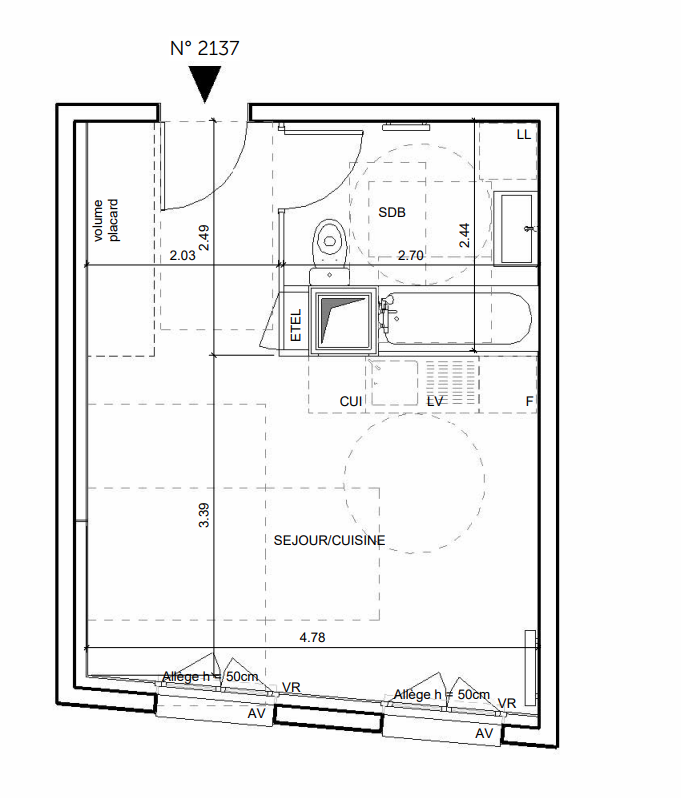
Type
Appt. au 3ème
Pièces
Studio
Surface
28.11 m²
Exposition
Sud
Ville
Rouen (76000)
Livraison
4ème trimestre 2027
Informations
01 81 80 39 10

Présentation du programme "Blossom Park"

Au sud de Rouen, notre nouvelle adresse est porteuse d'une vision novatrice et respectueuse de l'environnement. Ce nouvel écoquartier offre bien plus qu'un simple lieu de vie : c'est un véritable havre de paix où chaque instant semble suspendu.

A quelques pas de tous les transports, commerces, équipements et écoles, notre architecture contemporaine crée un trait d’union entre vie urbaine et ancrage naturel, oxygénée par 1 hectare de nature verdoyante. Véritable réserve de biodiversité, le parc offre aux appartements des vues dégagées et apaisantes.

Du studio au 4 pièces, laissez-vous séduire par le confort d’intérieurs idéalement conçus, proposant pour certains des plans modulables. Dès le 2 pièces, tous les appartements se prolongent par un bel espace extérieur, balcon ou terrasse, jusqu’à 35 m2. Découvrez l’équilibre parfait entre vie urbaine et harmonie résidentielle, au cœur d’une nature d’exception.

Autres logements Studio du programme "Blossom Park"

Disponibilité Prix Genre Pièces Surface Étage
Voir
Disponible
139 000€ Appt. Studio 25.62m2 0-RDC
Voir
Disponible
145 000€ Appt. Studio 28.14m2 2ème
DO NOT CLICK