Prix
169 000€
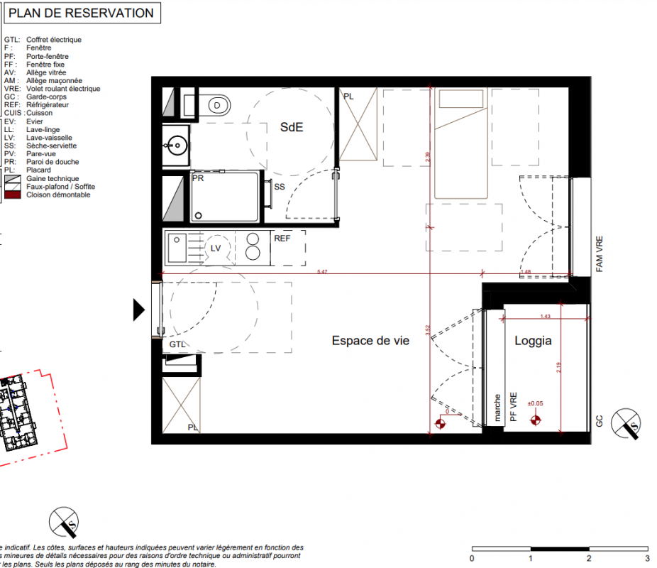
Type
Appt. au 1er
Pièces
Studio
Surface
35.9 m²
Exposition
-
Ville
Aytré (17440)
Livraison
4ème trimestre 2028
Informations
01 81 80 39 10

Présentation du programme "PORT-MARTIN"

[ OFFRE DE LANCEMENT – AUX PORTES DE LA ROCHELLE ] // AYTRÉ – Profitez de l’offre de lancement « Frais de notaire offerts »* sur PORT-MARTIN, une résidence neuve idéalement située boulevard du Commandant Charcot, à proximité immédiate de La Rochelle.

Entre océan Atlantique et cadre résidentiel, Aytré séduit par sa douceur de vivre et son dynamisme. La plage d’Aytré est accessible en 5 minutes à vélo, les bus Yélo (lignes 1 et 20) à 3 minutes à pied, et La Rochelle à seulement 13 minutes en voiture. Commerces, écoles et services de proximité facilitent le quotidien dans un environnement équilibré, adapté aussi bien à une résidence principale qu’à un investissement.

La résidence propose des appartements du studio au 3 pièces, conçus pour allier lumière naturelle et confort de vie. Les grandes ouvertures et les orientations soignées favorisent la luminosité, tandis que chaque logement bénéficie d’un espace extérieur prolongeant agréablement les pièces de vie. Certains appartements offrent également une possibilité de vue mer. Organisée autour d’un cœur d’îlot paysager végétalisé, PORT-MARTIN s’inscrit dans une architecture contemporaine au sein d’un cadre harmonieux.

Conforme à la RE2020 seuil 2025, la résidence intègre des stationnements couverts, des locaux vélos sécurisés, ainsi qu’un ascenseur et des accès sécurisés.

Les appartements bénéficient de prestations soignées : jardin privatif, balcon ou terrasse, sols stratifiés et grès émaillé, grande douche avec pare-douche et meuble vasque, volets électriques et porte palière 3 points.



*Voir les conditions sur la page Mentions légales de notre site Vianova.fr

Contactez nos conseillers Lamotte à BRUGES ou rendez-vous sur LAMOTTE.FR pour en savoir plus et concrétiser votre projet immobilier à Aytré.

Autres logements Studio du programme "PORT-MARTIN"

Disponibilité Prix Genre Pièces Surface Étage
Voir
Disponible
175 000€ Appt. Studio 35.9m2 2ème
DO NOT CLICK