Prix
257 000€
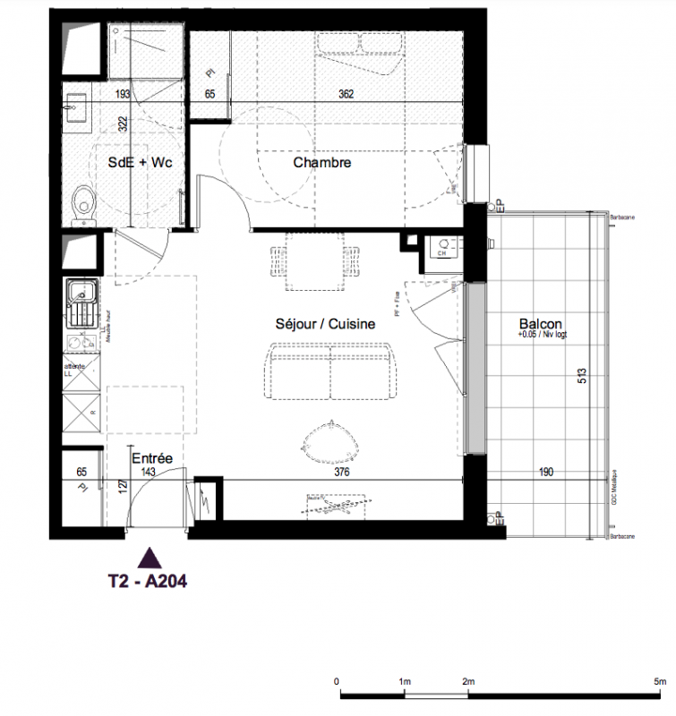
Type
Appt. au 2ème
Pièces
T2
Surface
46.31 m²
Exposition
Nord
Ville
La Rochelle (17000)
Livraison
1er trimestre 2025
Informations
01 81 80 39 10

Présentation du programme "CELESTE"

A 10 minutes en vélo du Vieux Port de La Rochelle, la résidence Céleste est située dans le quartier calme avec toutes les commodités et la gare à proximité. L’architecture de la résidence Céleste a été dessinée avec des volumes variés. La résidence propose 41 appartements du 2 au 5 pièces avec loggias et terrasses qui viendront animer la façade. L'arrière de la résidence offre un grand jardin arboré de plus de 250 m² et au rez-de-chaussée des espaces de bureaux. Notre nouvelle signature rochelaise CELESTE prend place sur un des axes principaux de la ville : la rue Emile Normandin. Situé à proximité immédiate, le marais de Tasdon est une richesse naturelle qui valorise plus de 150 espèces d’oiseaux et plus de 330 espèces végétales !

Autres logements T2 du programme "CELESTE"

Disponibilité Prix Genre Pièces Surface Étage
Voir
Disponible
257 000€ Appt. T2 45.52m2 1er
Voir
Disponible
255 000€ Appt. T2 47.55m2 1er
Voir
Disponible
228 000€ Appt. T2 35.6m2 2ème
DO NOT CLICK