Prix
366 000€
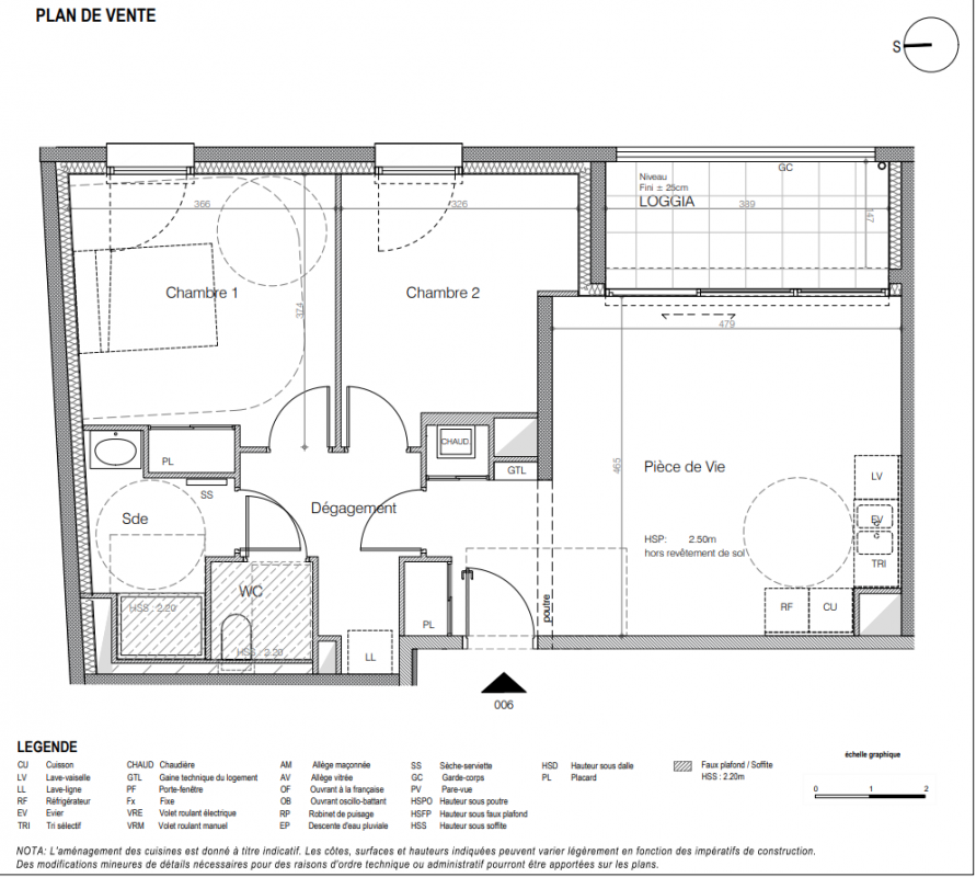
Type
Appt. au 0-RDC
Pièces
T3
Surface
61.8 m²
Exposition
-
Ville
La Rochelle (17000)
Livraison
2ème trimestre 2027
Informations
01 81 80 39 10

Présentation du programme "COTE CANAL"

[ TRAVAUX EN COURS ] // LA ROCHELLE – Bienvenue à CÔTÉ CANAL, une résidence neuve qui conjugue nature et vie urbaine, idéalement située aux portes du centre-ville de La Rochelle, le long du canal de Rompsay.

La résidence propose des appartements lumineux et spacieux de 3 et 4 pièces, pensés pour offrir un confort de vie durable. Chaque logement est prolongé par un espace extérieur, balcon ou terrasse, permettant de profiter pleinement de chaque moment.

L’architecture contemporaine et élégante de CÔTÉ CANAL, avec son bardage métallique et ses toitures inclinées, compose un ensemble harmonieux de deux bâtiments reliés par un hall accueillant et un porche. Le tout s’organise autour d’un cœur d’îlot paysager, largement ouvert à la lumière, propice au calme et à la détente.

Le dispositif LLI est disponible sur ce programme, offrant une opportunité pertinente pour un projet d’investissement*.



Voir les conditions sur la page Mentions légales de notre site Vianova.fr

Contactez dès maintenant nos conseillers pour plus d’informations ou rendez-vous sur LAMOTTE.FR.

Autres logements T3 du programme "COTE CANAL"

Disponibilité Prix Genre Pièces Surface Étage
Voir
Disponible
365 000€ Appt. T3 60.8m2 0-RDC
Voir
Disponible
388 000€ Appt. T3 61.8m2 2ème
DO NOT CLICK