Prix
136 500€
Type
Appt. au 0-RDC
Pièces
Studio
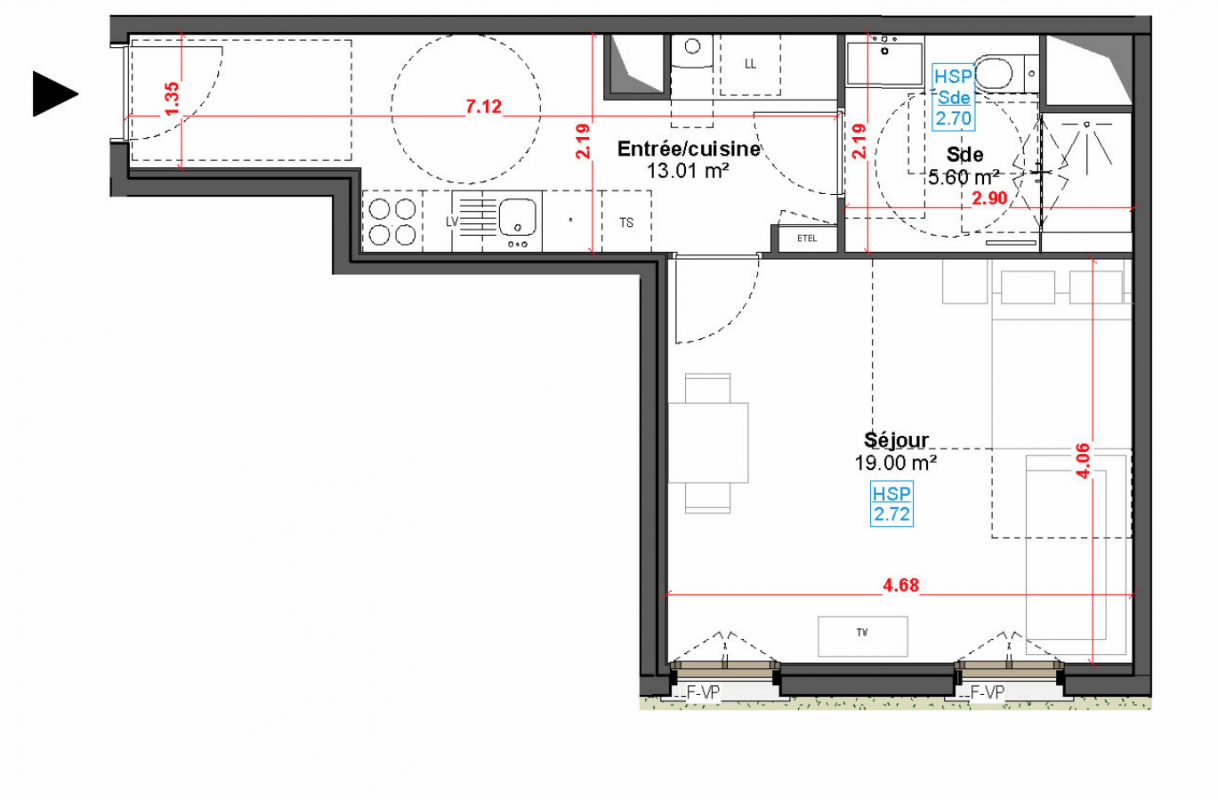
Surface
37.6 m²
Exposition
Sud
Ville
Angoulême (16000)
Livraison
4ème trimestre 2027
Informations
01 81 80 39 10

Présentation du programme "Perspective Karente"

Accéder à la maquette 3D de Perspective KarenteLa résidence Perspective Karente se situe dans le quartier Îlot du Port, en plein cœur d'Angoulême. À la fois moderne et apaisant, cet emplacement offre une vue imprenable sur l'île Marquet. Les appartements, du studio au 4 pièces, offrent volumes généreux, lumière et espaces extérieurs.Les cinq maisons de ville proposent trois chambres, jardin et place de stationnement, assurant un confort optimal. Une expérience de vie unique entre modernité et respect du patrimoine historique. Environnement apaisant, sur les berges de la Charente avec vue sur les 8 hectares de biodiversité qu'offre l'Île MarquetAppartements et maisons baignés de lumière et dotés d'aménagements astucieuxEspaces extérieurs conviviaux : balcons, terrasses, loggias et jardins privatifsPOUR LES APPARTEMENTSRevêtement de sol PVC pour l'ensemble des logementsDans les salles de bain ou salle d'eau, meuble vasque avec miroir et bandeaux lumineuxFenêtres et portes fenêtres en aluminium avec 1 ou 2 vantaux ouvrants à la françaiseStationnementPOUR LES MAISONSUne vaste pièce à vivre en rez-de-chaussée prolongée par une terrasse donnant sur le jardinRevêtement de sol PVC pour l'ensemble du logementDans la salle de bain, meuble vasque avec miroir et bandeaux lumineuxFenêtres et porte fenêtres en bois à 1 ou 2 vantaux, ouvrants à la française À proximité de la résidence à pied : Arrêt de bus « Port » au pied de la résidenceÉcole primaire à 3 min*Collège à 8 min *Gare d'Angoulême à 12 min*Cathédrale Saint-Pierre à 15 min* En train : À 50* min de PoitiersÀ 1 h 30* de BordeauxÀ 1 h 50* de Paris Montparnasse En voiture :À 1 h 30 de LimogesÀ 2h de La Rochelle*Données Google Maps

Autres logements Studio du programme "Perspective Karente"

Pas de logements disponibles
DO NOT CLICK