53 910€
240 590€
- €
240 590€
- €
Type
Appt. au 0-RDC
Appt. au 0-RDC
Pièces
T3
T3
Surface
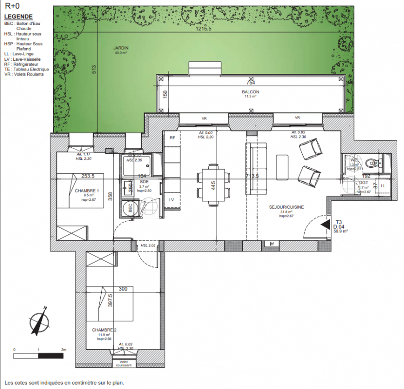
59.9 m²
59.9 m²
Exposition
Nord
Nord
Ville
Niort (79000)
Niort (79000)
Livraison
4ème trimestre 2026
4ème trimestre 2026
Informations
01 81 80 39 10
01 81 80 39 10
Présentation du programme "CASERNE LARGEAU"
Située dans l’ouest de la France, Niort, chef-lieu du département des Deux-Sèvres, est connue pour être la capitale des mutuelles et des assurances. 4ème pôle financier de France et avec près de 10 000 emplois propres au secteur des Mutuelles, Niort s'illustre également par sa qualité de vie, gardant la part belle aux déplacements doux et aux espaces naturels.
Située dans un quartier résidentiel, à seulement quelques minutes du centre-ville, l'ancienne caserne écrit une nouvelle page de son page avec ce projet de réhabilitation dévoilant 48 appartements, du studio au T3.
Autres logements T3 du programme "CASERNE LARGEAU"
| Disponibilité | Prix | No | Genre | Pièces | Surface | Étage | Disponibilité | Prix | ||
|---|---|---|---|---|---|---|---|---|---|---|
| Voir | Disponible | 286 100€ | A01 | Appt. | T3 | 54.5m2 Le bon plan | 0-RDC | Disponible | 286 100€ Prix foncier 49 830€ Prix travaux 216 270€ | Voir |
| Voir | Disponible | 286 100€ | A11 | Appt. | T3 | 54.5m2 | 1er | Disponible | 286 100€ Prix foncier 46 200€ Prix travaux 219 900€ | Voir |
| Voir | Disponible | 368 280€ | D13 | Appt. | T3 | 64.9m2 | 1er | Disponible | 368 280€ Prix foncier 52 980€ Prix travaux 295 300€ | Voir |
| Voir | Disponible | 312 900€ | D14 | Appt. | T3 | 59.6m2 | 1er | Disponible | 312 900€ Prix foncier 48 860€ Prix travaux 244 040€ | Voir |
| Voir | Disponible | 370 280€ | D23 | Appt. | T3 | 65.4m2 | 2ème | Disponible | 370 280€ Prix foncier 53 280€ Prix travaux 297 000€ | Voir |
| Voir | Optionné | 344 110€ | D24 | Appt. | T3 | 60.2m2 | 2ème | Optionné Mais pas encore vendu 😉 | 344 110€ Prix foncier 49 310€ Prix travaux 274 800€ | Voir |
| Voir | Disponible | 292 200€ | A21 | Appt. | T3 | 55m2 | 2ème | Disponible | 292 200€ Prix foncier 46 570€ Prix travaux 225 630€ | Voir |
| Voir | Disponible | 287 200€ | B03 | Appt. | T3 | 54.7m2 | 0-RDC | Disponible | 287 200€ Prix foncier 50 000€ Prix travaux 217 200€ | Voir |
| Voir | Disponible | 389 860€ | D03 | Appt. | T3 | 64.7m2 | 0-RDC | Disponible | 389 860€ Prix foncier 56 260€ Prix travaux 313 600€ | Voir |