34 720€
256 400€
- €
256 400€
- €
Type
Appt. au 0-RDC
Appt. au 0-RDC
Pièces
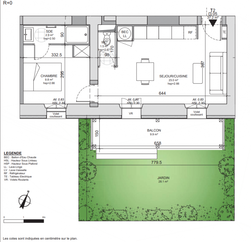
T2
T2
Surface
37.2 m²
37.2 m²
Exposition
Sud
Sud
Ville
Niort (79000)
Niort (79000)
Livraison
4ème trimestre 2026
4ème trimestre 2026
Informations
01 81 80 39 10
01 81 80 39 10
Présentation du programme "CASERNE LARGEAU"
Située dans l’ouest de la France, Niort, chef-lieu du département des Deux-Sèvres, est connue pour être la capitale des mutuelles et des assurances. 4ème pôle financier de France et avec près de 10 000 emplois propres au secteur des Mutuelles, Niort s'illustre également par sa qualité de vie, gardant la part belle aux déplacements doux et aux espaces naturels.
Située dans un quartier résidentiel, à seulement quelques minutes du centre-ville, l'ancienne caserne écrit une nouvelle page de son page avec ce projet de réhabilitation dévoilant 48 appartements, du studio au T3.
Autres logements T2 du programme "CASERNE LARGEAU"
| Disponibilité | Prix | No | Genre | Pièces | Surface | Étage | Disponibilité | Prix | ||
|---|---|---|---|---|---|---|---|---|---|---|
| Voir | Disponible | 341 980€ | D06 | Appt. | T2 | 47.3m2 | 0-RDC | Disponible | 341 980€ Prix foncier 41 880€ Prix travaux 280 100€ | Voir |
| Voir | Disponible | 317 570€ | D11 | Appt. | T2 | 46.6m2 | 1er | Disponible | 317 570€ Prix foncier 38 670€ Prix travaux 258 900€ | Voir |
| Voir | Disponible | 308 010€ | D25 | Appt. | T2 | 37.4m2 | 2ème | Disponible | 308 010€ Prix foncier 31 710€ Prix travaux 256 300€ | Voir |
| Voir | Optionné | 321 680€ | C11 | Appt. | T2 | 43.1m2 | 1er | Optionné Mais pas encore vendu 😉 | 321 680€ Prix foncier 36 280€ Prix travaux 265 400€ | Voir |
| Voir | Optionné | 301 760€ | D15 | Appt. | T2 | 36.9m2 | 1er | Optionné Mais pas encore vendu 😉 | 301 760€ Prix foncier 31 260€ Prix travaux 250 500€ | Voir |
| Voir | Optionné | 319 100€ | D16 | Appt. | T2 | 47m2 | 1er | Optionné Mais pas encore vendu 😉 | 319 100€ Prix foncier 38 900€ Prix travaux 260 200€ | Voir |
| Voir | Optionné | 323 120€ | D26 | Appt. | T2 | 47.7m2 | 2ème | Optionné Mais pas encore vendu 😉 | 323 120€ Prix foncier 39 420€ Prix travaux 263 700€ | Voir |
| Voir | Disponible | 321 680€ | C01 | Appt. | T2 | 43m2 | 0-RDC | Disponible | 321 680€ Prix foncier 38 880€ Prix travaux 262 800€ | Voir |
| Voir | Disponible | 333 460€ | D01 | Appt. | T2 | 46.3m2 | 0-RDC | Disponible | 333 460€ Prix foncier 40 760€ Prix travaux 272 700€ | Voir |