Prix
96 500€
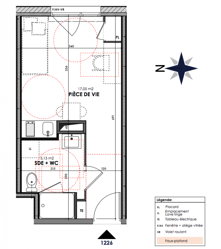
Type
Appt. au 1er
Pièces
Studio
Surface
22 m²
Exposition
Est
Ville
Champcevinel (24750)
Livraison
2ème trimestre 2026
Informations
01 81 80 39 10

Présentation du programme "L'EMPREINTE - Rés. étudiants"

Autres logements Studio du programme "L'EMPREINTE - Rés. étudiants"

Disponibilité Prix Genre Pièces Surface Étage
Voir
Disponible
99 200€ Appt. Studio 22m2 0-RDC
Voir
Disponible
96 500€ Appt. Studio 22m2 0-RDC
Voir
Disponible
99 200€ Appt. Studio 22m2 0-RDC
DO NOT CLICK