475 000€
Maison au 0-RDC
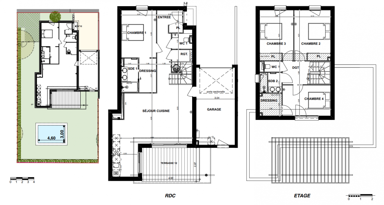
T5
121.1 m²
-
Artigues-près-Bordeaux (33370)
2ème trimestre 2026
01 81 80 39 10
Présentation du programme "VILLAS ANDROMEDE"
[ MAISONS DISPONIBLES IMMÉDIATEMENT – VISITEZ NOTRE MAISON DÉCORÉE ] // ARTIGUES-PRÈS-BORDEAUX – Offrez-vous une villa neuve 4 ou 5 pièces aux portes de Bordeaux, à seulement 11 km de la métropole.
Venez visiter notre maison décorée et projetez-vous dans un cadre de vie confortable, familial et prêt à vivre. Ces villas neuves disposent d’un étage, d’un garage, de deux stationnements extérieurs et d’un jardin privatif. Certaines bénéficient également d’une piscine ou d’un terrain piscinable, pour profiter pleinement des beaux jours.
Avec ces maisons clé en main, vous bénéficiez d’un achat sécurisé et maîtrisé, accompagné de garanties solides : parfait achèvement, bon fonctionnement et décennale.
Volumes généreux, belle luminosité, prestations soignées et environnement paisible composent un cadre de vie idéal pour s’installer ou investir, à proximité immédiate de Bordeaux.
Contactez dès maintenant nos conseillers Lamotte à BRUGES ou rendez-vous sur LAMOTTE.FR pour en savoir plus.

