454 000€
Appt. au 2ème
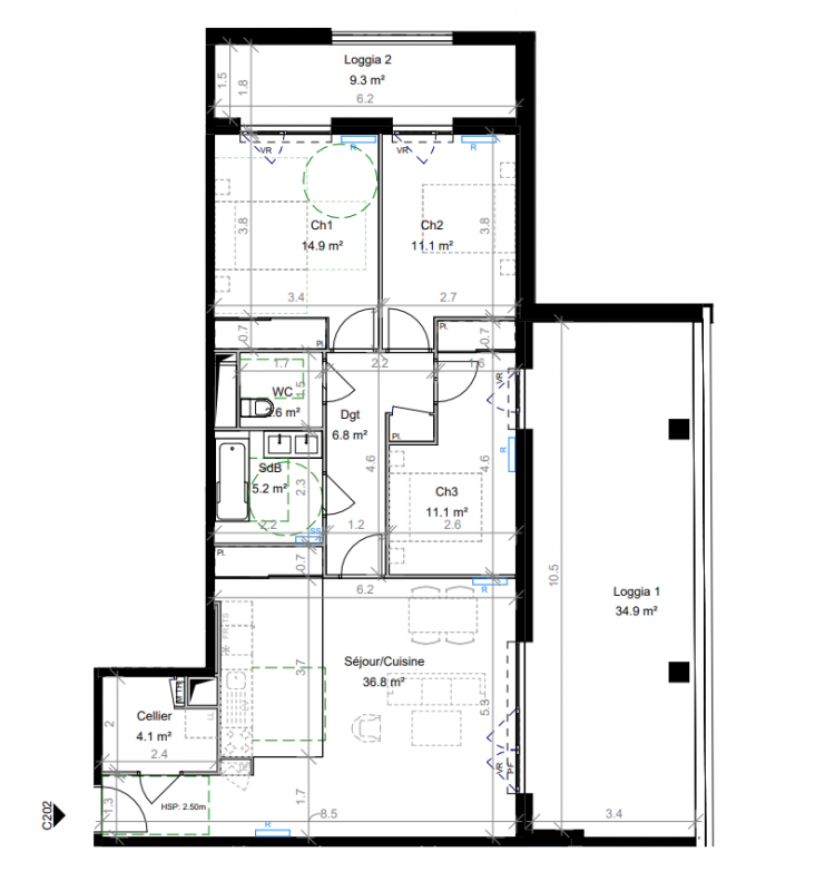
T4
92.6 m²
Sud-Est
Bordeaux (33000)
2ème trimestre 2026
01 81 80 39 10
Présentation du programme "Programme neuf Bordeaux (33000)"
LIVRAISON IMMEDIATE à Bordeaux, sur les bords de Garonne ! Tous les vendredis, venez rencontrer notre conseillère sur rendez-vous pour visiter l'appartement décoré et emménager cette année ! Du studio au 5 pièces, la résidence propose une large diversité de logements pensés pour s'adapter à tous les modes de vie. Les appartements bénéficient de larges ouvertures vers l'extérieur, prolongées par un balcon, une terrasse ou une loggia, offrant une belle luminosité naturelle et un confort au quotidien.Certains logements, conçus comme de véritables lofts, se distinguent par un vaste séjour cathédrale, aux volumes spectaculaires. D'autres appartements, tournés vers le cœur d'îlot paysager, prolongent naturellement le côté jardin, pour une atmosphère plus intimiste et apaisée.L'architecture, singulière et résolument contemporaine, affirme une identité forte. La résidence se distingue par sa façade sculptée de facettes biseautées, au style assumé, qui évoque la mémoire industrielle du site en réinterprétant le tracé des anciennes fermes métalliques. Une écriture architecturale audacieuse, à la fois élégante et intemporelle.Située au cœur du nouveau quartier Bastide Niel, dynamique et innovant, la résidence s'inscrit dans un environnement durable privilégiant les circulations douces et les usages multiples. Commerces, services et groupes scolaires sont accessibles à proximité immédiate. Le centre historique de Bordeaux se rejoint en 10 minutes en tramway, pour un quotidien pratique et connecté.Contactez dès maintenant un de nos conseillers pour découvrir nos appartements neufs à Bordeaux et pour concrétiser votre projet immobilier !
Autres logements T4 du programme "Programme neuf Bordeaux (33000)"
| Disponibilité | Prix | No | Genre | Pièces | Surface | Étage | Disponibilité | Prix | ||
|---|---|---|---|---|---|---|---|---|---|---|
| Voir | Optionné | 484 000€ | C402D | Appt. | T4 | 106.9m2 Le bon plan | 4ème | Optionné Mais pas encore vendu 😉 | 484 000€ | Voir |
| Voir | Disponible | 468 000€ | D201 | Appt. | T4 | 100.6m2 | 2ème | Disponible | 468 000€ | Voir |
| Voir | Disponible | 494 000€ | D301D | Appt. | T4 | 97.8m2 | 3ème | Disponible | 494 000€ | Voir |
| Voir | Disponible | 430 000€ | F102 | Appt. | T4 | 90.7m2 | 1er | Disponible | 430 000€ | Voir |
| Voir | Disponible | 434 000€ | F202 | Appt. | T4 | 92.3m2 | 2ème | Disponible | 434 000€ | Voir |
| Voir | Disponible | 430 000€ | F105 | Appt. | T4 | 90.5m2 | 1er | Disponible | 430 000€ | Voir |