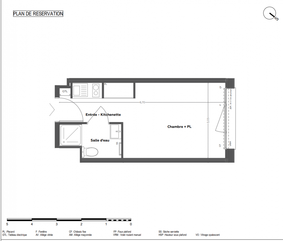
Prix
154 000€
Type
Appt. au 3ème
Pièces
Studio
Surface
18.95 m²
Exposition
-
Ville
Bordeaux (33000)
Livraison
3ème trimestre 2027
Informations
01 81 80 39 10

Présentation du programme "KLEEZI | THIERS BORDEAUX"

[ SPÉCIAL INVESTISSEURS ] – BORDEAUX – AVENUE THIERS – Découvrez KLEEZI I BORDEAUX THIERS, une résidence étudiante et jeunes actifs haut de gamme, idéalement située avenue Thiers, au cœur du quartier prisé et en pleine transformation de La Bastide. Ce programme immobilier neuf associe prestations soignées, emplacement stratégique et potentiel locatif solide, constituant une opportunité pertinente de placement en LMNP pour sécuriser et diversifier votre patrimoine.

KLEEZI I BORDEAUX THIERS repense le logement étudiant avec des espaces modernes, meublés et aménagés avec soin, conçus pour le confort et le bien-être des résidents, tout en s’inscrivant pleinement dans la vie du quartier. Un cadre de vie qualitatif, en adéquation avec les attentes actuelles des étudiants et jeunes actifs.

Avec plus de 100 000 étudiants et un marché locatif particulièrement tendu, Bordeaux s’impose comme une place universitaire de premier plan. La résidence bénéficie d’une adresse recherchée, à proximité des universités, des commerces et des transports en commun, favorisant un taux d’occupation élevé et une rentabilité optimisée pour les investisseurs.

Avec le PACK LAMOTTE, vous bénéficiez :
> d’un mobilier entièrement fourni,
> d’une gestion locative et comptable sur mesure**,
> d’un accompagnement bancaire pour vos solutions de financement.

Une opportunité d’investissement structurée dans un secteur durablement porteur.

* Voir les conditions sur la page Mentions légales de notre site Vianova.fr
** Gestion comptable par un cabinet offerte la première année.

Contactez dès maintenant nos conseillers Lamotte à BRUGES ou rendez-vous sur LAMOTTE.FR pour en savoir plus.
* Voir les conditions sur la page mentions légales de notre site Vianova.fr
** Gestion comptable par un cabinet offerte la première année.

Autres logements Studio du programme "KLEEZI | THIERS BORDEAUX"

Disponibilité Prix Genre Pièces Surface Étage
Voir
Disponible
147 000€ Appt. Studio 18.47m2 0-RDC
Voir
Disponible
147 600€ Appt. Studio 18.32m2 0-RDC
Voir
Disponible
147 200€ Appt. Studio 18.47m2 0-RDC
Voir
Disponible
145 100€ Appt. Studio 19.91m2 0-RDC
Voir
Disponible
149 200€ Appt. Studio 18.47m2 1er
Voir
Disponible
151 200€ Appt. Studio 18.95m2 1er
Voir
Disponible
152 500€ Appt. Studio 18.95m2 1er
Voir
Disponible
152 500€ Appt. Studio 18.95m2 1er
Voir
Disponible
152 500€ Appt. Studio 18.69m2 1er
Voir
Disponible
152 500€ Appt. Studio 18.95m2 1er
Voir
Disponible
152 500€ Appt. Studio 18.95m2 1er
Voir
Disponible
150 600€ Appt. Studio 18.32m2 2ème
Voir
Disponible
156 500€ Appt. Studio 18.32m2 2ème
Voir
Disponible
153 500€ Appt. Studio 18.95m2 2ème
Voir
Disponible
153 500€ Appt. Studio 18.95m2 2ème
Voir
Disponible
153 000€ Appt. Studio 18.95m2 2ème
Voir
Disponible
189 500€ Appt. Studio 19.19m2 2ème
Voir
Disponible
157 000€ Appt. Studio 18.32m2 3ème
Voir
Disponible
154 000€ Appt. Studio 18.95m2 3ème
Voir
Disponible
151 800€ Appt. Studio 18.47m2 3ème
Voir
Disponible
151 800€ Appt. Studio 18.59m2 3ème
Voir
Disponible
154 000€ Appt. Studio 18.69m2 3ème
Voir
Disponible
154 000€ Appt. Studio 18.95m2 3ème
Voir
Disponible
154 000€ Appt. Studio 18.95m2 3ème
Voir
Disponible
150 100€ Appt. Studio 19.91m2 3ème
Voir
Disponible
151 700€ Appt. Studio 18.47m2 4ème
Voir
Disponible
153 700€ Appt. Studio 18.95m2 4ème
Voir
Disponible
152 100€ Appt. Studio 18.32m2 4ème
Voir
Disponible
151 700€ Appt. Studio 18.47m2 4ème
Voir
Disponible
151 700€ Appt. Studio 18.95m2 4ème
Voir
Disponible
158 000€ Appt. Studio 18.32m2 4ème
Voir
Disponible
155 000€ Appt. Studio 18.95m2 4ème
Voir
Disponible
155 000€ Appt. Studio 18.95m2 4ème
Voir
Disponible
152 800€ Appt. Studio 18.47m2 4ème
Voir
Disponible
152 800€ Appt. Studio 18.47m2 4ème
Voir
Disponible
152 800€ Appt. Studio 18.59m2 4ème
Voir
Disponible
155 000€ Appt. Studio 18.69m2 4ème
Voir
Disponible
155 000€ Appt. Studio 18.95m2 4ème
Voir
Disponible
151 300€ Appt. Studio 18.47m2 4ème
Voir
Disponible
151 100€ Appt. Studio 19.91m2 4ème
Voir
Disponible
152 700€ Appt. Studio 18.47m2 5ème
Voir
Disponible
154 700€ Appt. Studio 18.95m2 5ème
Voir
Disponible
153 100€ Appt. Studio 18.32m2 5ème
Voir
Disponible
152 700€ Appt. Studio 18.47m2 5ème
Voir
Disponible
152 700€ Appt. Studio 18.95m2 5ème
Voir
Disponible
151 500€ Appt. Studio 18.95m2 5ème
Voir
Disponible
151 300€ Appt. Studio 18.32m2 5ème
Voir
Disponible
152 300€ Appt. Studio 18.47m2 5ème
Voir
Disponible
152 100€ Appt. Studio 19.91m2 5ème
Voir
Disponible
154 000€ Appt. Studio 18.95m2 3ème
Voir
Disponible
155 500€ Appt. Studio 18.32m2 1er
DO NOT CLICK