525 920€
858 080€
- €
858 080€
- €
Type
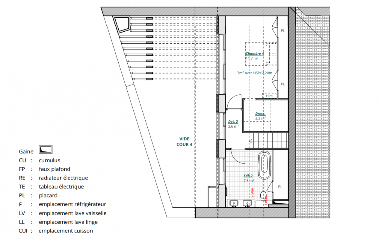
Appt. au 4ème
Appt. au 4ème
Pièces
T5
T5
Surface
149.8 m²
149.8 m²
Exposition
-
-
Ville
Bordeaux (33000)
Bordeaux (33000)
Livraison
4ème trimestre 2025
4ème trimestre 2025
Informations
01 81 80 39 10
01 81 80 39 10
Présentation du programme "LE PHOENIX"
Programme neuf Bordeaux - 33000
Autres logements T5 du programme "LE PHOENIX"
| Disponibilité | Prix | No | Genre | Pièces | Surface | Étage | Disponibilité | Prix | ||
|---|---|---|---|---|---|---|---|---|---|---|
| Voir | Disponible | 2 071 240€ | 5 | Appt. | T5 | 184.1m2 | 2ème | Disponible | 2 071 240€ Prix foncier 742 520€ Prix travaux 1 211 480€ | Voir |
| Voir | Disponible | 1 937 680€ | 7 | Appt. | T5 | 184m2 | 3ème | Disponible | 1 937 680€ Prix foncier 694 640€ Prix travaux 1 133 360€ | Voir |

