Prix
334 600€ (TVA 20%)
294 170€ (TVA 5.5%)
334 600€ (TVA 20%)
294 170€ (TVA 5.5%)
Type
Appt. au 0-RDC
Appt. au 0-RDC
Pièces
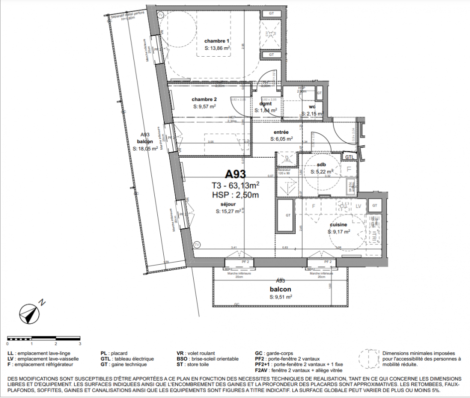
T3
T3
Surface
63.16 m²
63.16 m²
Exposition
Sud
Sud
Ville
Bordeaux (33000)
Bordeaux (33000)
Livraison
4ème trimestre 2026
4ème trimestre 2026
Informations
01 81 80 39 10
01 81 80 39 10
Présentation du programme "NEXT STEP"
Nouvelle résidence dans le Quartier Armagnac Sud, située au pied de l'arrêt de tram "Carle Vernet", lignes C et D. Proche du Jardin de l'Ars et du pont Simone Veil, à 5min de la Gare St Jean.
Elle se composera de 66 logements sur 9 étages, allant du studio au 5 pièces, dont certains en duplex.