Ce lot n’est plus disponible chez VIANOVA ou est vendu.
Vous pouvez revenir dans 24h pour vérifier le stock à jour ou contacter un conseiller Vianova pour vérifier le stock en direct.
Vous pouvez également continuer votre recherche sur notre site « ici ».
Prix
385 000€
385 000€
Type
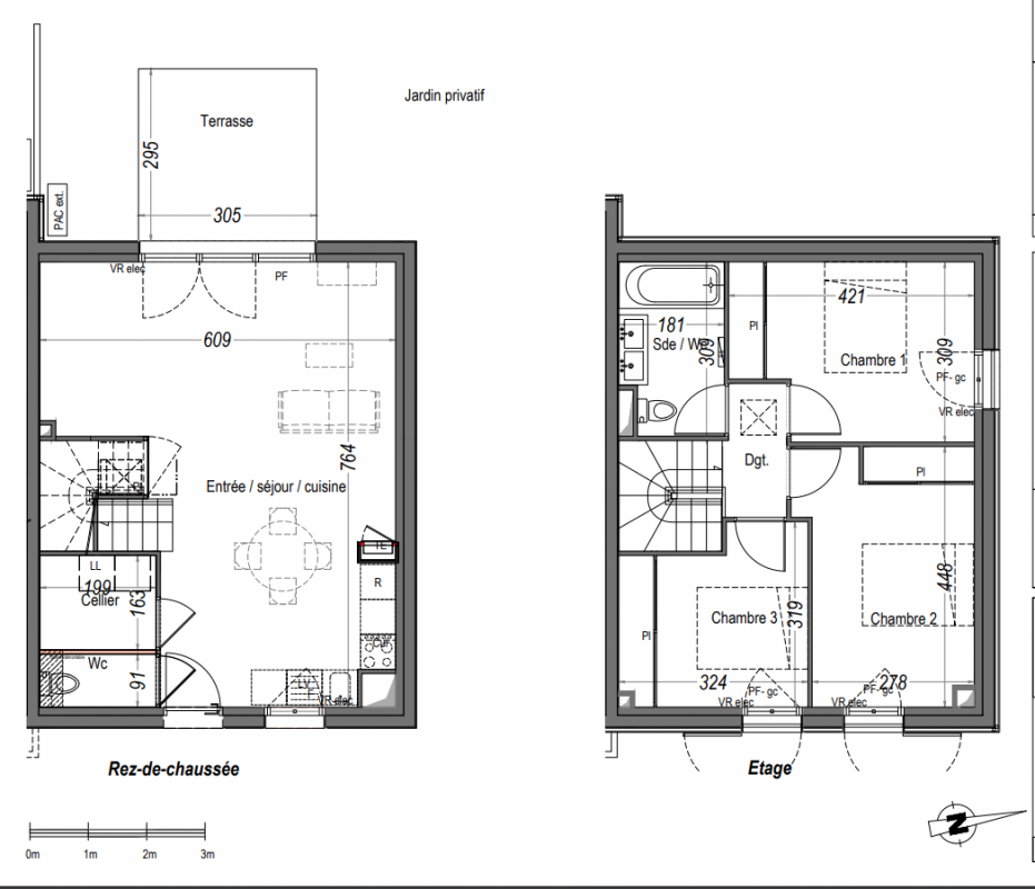
Appt. au 0-RDC
Appt. au 0-RDC
Pièces
-
-
Surface
83.67 m²
83.67 m²
Exposition
Ouest
Ouest
Ville
Le Teich (33470)
Le Teich (33470)
Livraison
1er trimestre 2026
1er trimestre 2026
Informations
01 81 80 39 10
01 81 80 39 10
Présentation du programme "Bel Eyre"
Prochainement au Teich (33), votre nouvelle résidence signée Vianova. Soyez les 1ers à découvrir des maisons ou appartements modernes et confortables, allant du T1 au T4 en duplex avec de beaux espaces extérieurs et proposant une architecture typique du bassin arcachonnais. Nichée au cœur du Teich, véritable écrin de verdure, à proximité immédiate des commerces et des transports, la résidence est à seulement 800 mètres à pied de la gare, avec des liaisons quotidiennes entre Bordeaux et Arcachon. À l’abri d’un quartier résidentiel, c’est le choix idéal pour les personnes à la recherche d'un logement pratique et élégant au sein d’un cadre calme et naturel.