Prix
142 900€
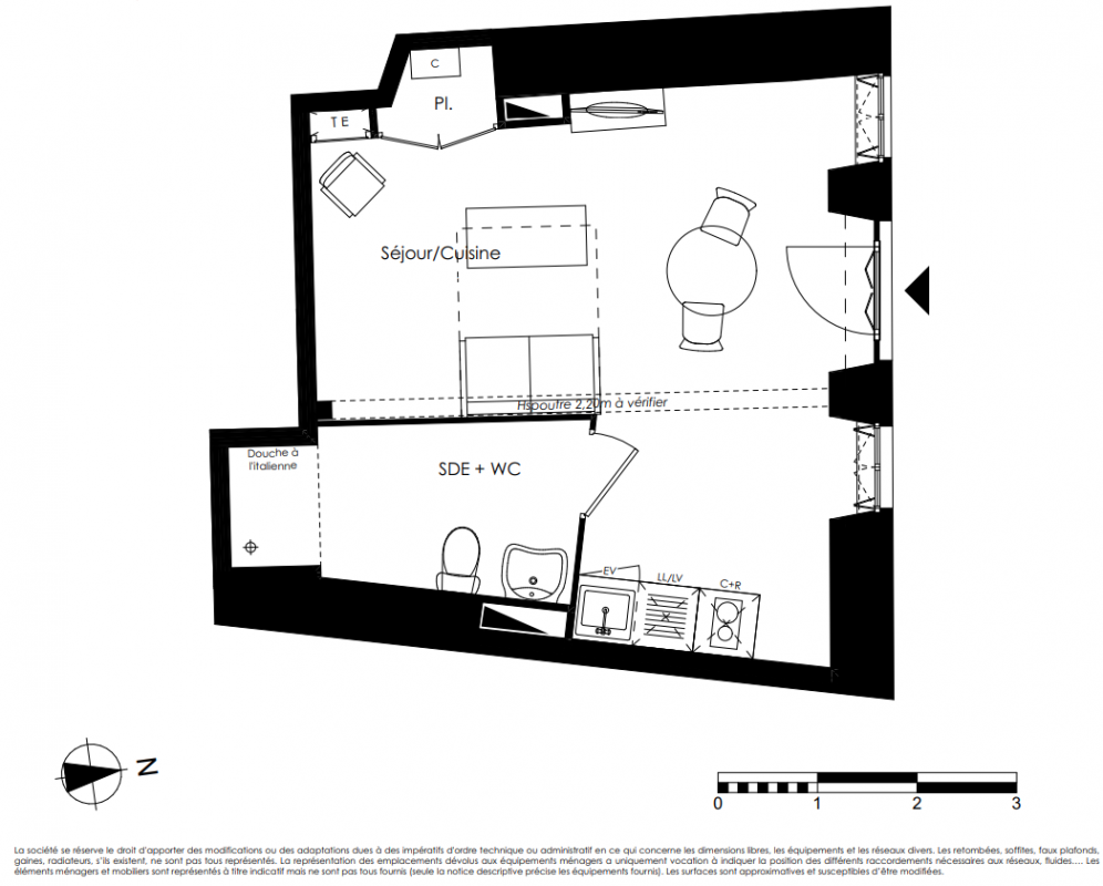
Type
Appt. au 0-RDC
Pièces
Studio
Surface
29.62 m²
Exposition
Nord
Ville
Châtellerault (86100)
Livraison
4ème trimestre 2027
Informations
01 81 80 39 10

Présentation du programme "COUR DUPLEIX"

COUR DUPLEIX est le résultat d’une restauration complète d’un ensemble immobilier comprenant la quicaillerie Quillet, des boutiques, des bureaux, des logements et des garages.
Cette nouvelle résidence transforme l’existant en 39 logements du T1 au T3 répartis dans 4 bâtiments en R+1 et R+3, ainsi qu’un commerce au pied de l’immeuble Place Dupleix, à la place de l’ancienne Quincaillerie Quillet.
La façade côté Place Dupleix est remarquable et raffinée, lisible d’une part au niveau de la devanture de la quincaillerie avec les éléments du passé précieusement conservés, et d’autre part sur l’ornementation des étages sous la forme de deux pilastres encadrant la façade et soutenant une corniche, autour desquels s’enroule de la végétation et des animaux. Imprégné des empreintes du passé, ce lieu mêle harmonieusement authenticité et modernité.
La pierre, matériau noble par excellence, confère un caractère et une sensation de pérennité. En préservant l’âme du bâti existant, les appartements de COUR DUPLEIX proposent des prestations, de qualité tout en améliorant la performance énergétique des logements, perpétuant une histoire riche de près d’un siècle.
Une attention particulière est apportée au réemploi et à la valorisation des éléments patrimoniaux. Le confort moderne s’intègre avec finesse dans chaque appartement, enrichi par le charme unique de l’ancien qui lui confère une âme intemporelle.
Une jolie petite cour intérieure intimiste est proposée à l’arrière du projet.

Autres logements Studio du programme "COUR DUPLEIX"

Disponibilité Prix Genre Pièces Surface Étage
Voir
Optionné
129 900€ Appt. Studio 23.06m2 3ème
Voir
Disponible
131 900€ Appt. Studio 25.01m2 3ème
DO NOT CLICK