103 000€
Appt. au 2ème
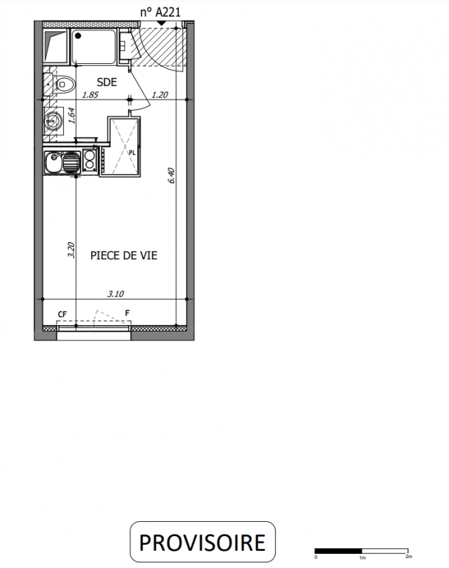
Studio
18.78 m²
Sud-Est
Alès (30100)
3ème trimestre 2027
01 81 80 39 10
Présentation du programme "Programme neuf Alès (30100)"
Démarrage des travaux à ALES ! Investissez dans notre nouvelle résidence étudiante et bénéficiez des avantages du LMNP avec une rentabilité jusqu'à 6%* par an ! Idéalement située à quelques minutes à pied de l'École des Mines d'Alès, Urbaneo – Les Mines offre un cadre de vie adapté aux besoins des étudiants et des jeunes actifs, alliant confort, sécurité et convivialité. Notre nouvelle résidence est à proximité immédiate d’une supérette et d’un primeur accessibles directement à pied, ainsi que de la gare d'Alès, située à seulement 5 min* à vélo, permettant des déplacements rapides et pratiques. Les transports en commun desservent efficacement les différents quartiers de la ville avec notamment de nombreux arrêts de bus dans les alentours, garantissant un accès facile aux établissements scolaires et universitaires ainsi qu'aux espaces de loisirs.La résidence propose des appartements fonctionnels allant du studio au 2 pièces, dont certains disposent d'un balcon. Conçus pour optimiser l'espace de vie, nos logements offrent un cadre confortable et pratique, parfaitement adapté aux exigences des étudiants. Pour assurer bien-être et sérénité, la résidence est entièrement fermée et sécurisée.Urbaneo met à disposition de ses résidents un gardien assurant une présence rassurante, une laverie en libre-service, un local à vélos sécurisé, une salle de coworking propice au travail, un espace arboré pour se détendre, ainsi qu'une terrasse commune pour partager des moments conviviaux.Contactez-vite un de nos conseillers pour découvrir tous nos logements neufs à ALES et concrétiser votre projet d'investissement locatif!
Autres logements Studio du programme "Programme neuf Alès (30100)"
| Disponibilité | Prix | No | Genre | Pièces | Surface | Étage | Disponibilité | Prix | ||
|---|---|---|---|---|---|---|---|---|---|---|
| Voir | Disponible | 101 200€ | A107 | Appt. | Studio | 18.78m2 | 1er | Disponible | 101 200€ | Voir |
| Voir | Disponible | 101 300€ | A110 | Appt. | Studio | 18.78m2 | 1er | Disponible | 101 300€ | Voir |
| Voir | Disponible | 116 200€ | A125 | Appt. | Studio | 24.02m2 | 1er | Disponible | 116 200€ | Voir |
| Voir | Disponible | 98 900€ | A202 | Appt. | Studio | 18.78m2 | 2ème | Disponible | 98 900€ | Voir |
| Voir | Disponible | 108 000€ | B009 | Appt. | Studio | 20.93m2 | 0-RDC | Disponible | 108 000€ | Voir |
| Voir | Disponible | 98 000€ | B010 | Appt. | Studio | 20.93m2 | 0-RDC | Disponible | 98 000€ | Voir |
| Voir | Disponible | 97 600€ | B019 | Appt. | Studio | 18.78m2 | 0-RDC | Disponible | 97 600€ | Voir |
| Voir | Disponible | 98 900€ | B022 | Appt. | Studio | 18.72m2 | 0-RDC | Disponible | 98 900€ | Voir |
| Voir | Disponible | 113 300€ | B124 | Appt. | Studio | 27.93m2 | 1er | Disponible | 113 300€ | Voir |
| Voir | Disponible | 116 200€ | B126 | Appt. | Studio | 21.04m2 | 1er | Disponible | 116 200€ | Voir |
| Voir | Disponible | 110 000€ | BR01 | Appt. | Studio | 26.79m2 | 0-RDC | Disponible | 110 000€ | Voir |
| Voir | Disponible | 103 000€ | BR06 | Appt. | Studio | 18.78m2 | 0-RDC | Disponible | 103 000€ | Voir |
| Voir | Disponible | 99 400€ | BR22 | Appt. | Studio | 18.72m2 | 0-RDC | Disponible | 99 400€ | Voir |
| Voir | Disponible | 111 800€ | BR26 | Appt. | Studio | 27.93m2 | 0-RDC | Disponible | 111 800€ | Voir |
| Voir | Disponible | 97 900€ | A008 | Appt. | Studio | 18.78m2 | 0-RDC | Disponible | 97 900€ | Voir |
| Voir | Disponible | 111 700€ | A116 | Appt. | Studio | 23.53m2 | 1er | Disponible | 111 700€ | Voir |
| Voir | Disponible | 99 000€ | A208 | Appt. | Studio | 18.78m2 | 2ème | Disponible | 99 000€ | Voir |
| Voir | Disponible | 119 900€ | A225 | Appt. | Studio | 24.02m2 | 2ème | Disponible | 119 900€ | Voir |
| Voir | Disponible | 94 900€ | A002 | Appt. | Studio | 18.78m2 | 0-RDC | Disponible | 94 900€ | Voir |
| Voir | Disponible | 98 000€ | A017 | Appt. | Studio | 18.78m2 | 0-RDC | Disponible | 98 000€ | Voir |
| Voir | Disponible | 102 000€ | A118 | Appt. | Studio | 18.78m2 | 1er | Disponible | 102 000€ | Voir |
| Voir | Disponible | 103 400€ | B001 | Appt. | Studio | 21.04m2 | 0-RDC | Disponible | 103 400€ | Voir |
| Voir | Optionné | 98 000€ | BR05 | Appt. | Studio | 18.78m2 | 0-RDC | Optionné Mais pas encore vendu 😉 | 98 000€ | Voir |
| Voir | Disponible | 101 000€ | A011B | Appt. | Studio | 17.95m2 | 0-RDC | Disponible | 101 000€ | Voir |
| Voir | Disponible | 101 000€ | A111A | Appt. | Studio | 17.95m2 | 1er | Disponible | 101 000€ | Voir |
| Voir | Disponible | 111 400€ | A111B | Appt. | Studio | 20.53m2 | 1er | Disponible | 111 400€ | Voir |
| Voir | Disponible | 116 300€ | A112A | Appt. | Studio | 20.53m2 | 1er | Disponible | 116 300€ | Voir |
| Voir | Disponible | 102 000€ | A112B | Appt. | Studio | 17.95m2 | 1er | Disponible | 102 000€ | Voir |
| Voir | Disponible | 102 100€ | A124A | Appt. | Studio | 18.78m2 | 1er | Disponible | 102 100€ | Voir |
| Voir | Disponible | 116 300€ | A124B | Appt. | Studio | 25.17m2 | 1er | Disponible | 116 300€ | Voir |
| Voir | Disponible | 103 200€ | A211A | Appt. | Studio | 17.95m2 | 2ème | Disponible | 103 200€ | Voir |
| Voir | Disponible | 116 300€ | A211B | Appt. | Studio | 20.53m2 | 2ème | Disponible | 116 300€ | Voir |
| Voir | Disponible | 116 300€ | A212A | Appt. | Studio | 20.53m2 | 2ème | Disponible | 116 300€ | Voir |
| Voir | Disponible | 103 200€ | A212B | Appt. | Studio | 17.95m2 | 2ème | Disponible | 103 200€ | Voir |
| Voir | Disponible | 103 200€ | A224A | Appt. | Studio | 18.78m2 | 2ème | Disponible | 103 200€ | Voir |
| Voir | Disponible | 121 500€ | A224B | Appt. | Studio | 25.17m2 | 2ème | Disponible | 121 500€ | Voir |
| Voir | Disponible | 113 800€ | A011A | Appt. | Studio | 20.51m2 | 0-RDC | Disponible | 113 800€ | Voir |