Prix
214 900€
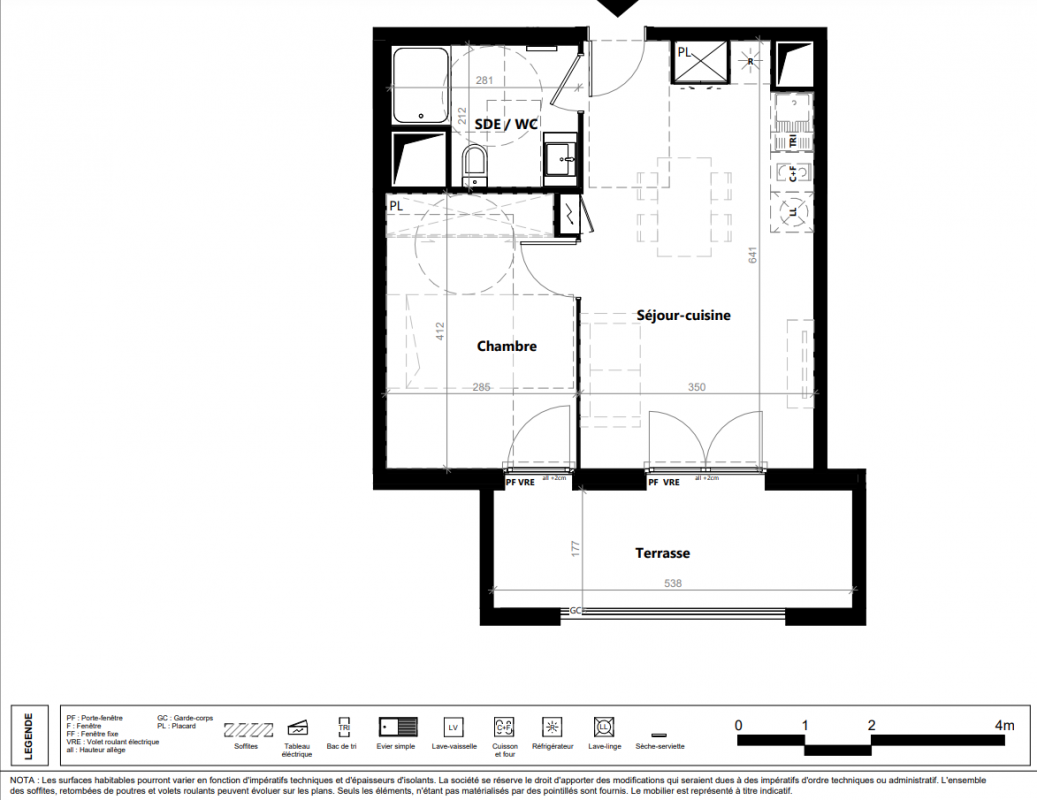
Type
Appt. au 5ème
Pièces
-
Surface
38.42 m²
Exposition
-
Ville
Toulouse (31000)
Livraison
4ème trimestre 2028
Informations
01 81 80 39 10

Présentation du programme "ESPRIT CARTOUCHERIE"

Programme immobilier neuf - Toulouse La Cartoucherie : Appartements avec vue panoramique sur Toulouse - Cible jeunes actifs et investisseurs. Localisation stratégique et dynamique de marché
Situé dans la ZAC de la Cartoucherie à Toulouse, avenue de Grande-Bretagne, le programme bénéficie d'un emplacement premium au sein d'un écoquartier reconnu pour sa forte attractivité résidentielle. À proximité immédiate de Saint-Cyprien et des berges de la Garonne, le secteur concentre commerces, équipements culturels, pôles tertiaires et infrastructures de transport.

Connexion optimale : métro, tramway, bus et accès rapide au périphérique permettant de rejoindre le centre-ville en moins de 15 minutes. Quartier à fort potentiel de valorisation, porté par la transformation urbaine et la montée en gamme de l'offre résidentielle.

Description de l'opération : Résidence contemporaine ouverte sur un parc urbain paysager d'environ 1 hectare. Architecture élancée avec hauteurs étagées favorisant les vues dégagées et la luminosité naturelle.
Appartements du T2 au T5, tous prolongés par des loggias spacieuses. Certains logements bénéficient de vues panoramiques sur Toulouse et, en étages élevés, jusqu'aux Pyrénées.
Typologies et cibles commerciales :
- T2 : jeunes actifs, primo-accédants solos, investisseurs locatifs.
- T3 : couples actifs, résidence principale.
- T4 et T5 en attique avec grandes terrasses (jusqu'à 70 m²) : clientèle familiale urbaine et CSP+.

Produit lisible, adaptable à la résidence principale comme à l'investissement locatif.

Arguments commerciaux clés :
- Emplacement recherché dans un écoquartier structurant de Toulouse.
- Vue dégagée et environnement paysager différenciant.
- Forte demande locative sur le secteur (proximité centre-ville et bassins d'emploi).
- Accessibilité transports immédiate.
- Quartier vivant : Halles de la Cartoucherie, Zénith, futur cinéma, commerces et services au pied de la résidence.

Dispositifs activables :
- Prêt à Taux Zéro (PTZ) sous conditions.
- Bail Réel Solidaire (BRS) pour une accession à prix maîtrisé.
- Investissement locatif possible en LMNP ou LLI selon profil et éligibilité.

Synthèse prescripteur : Produit adapté aux jeunes actifs urbains.
Marché locatif sécurisé par la centralité et les transports.
Quartier en valoris

Autres logements - du programme "ESPRIT CARTOUCHERIE"

Disponibilité Prix Genre Pièces Surface Étage
Voir
Disponible
199 900€ Appt. - 38.5m2 2ème
Voir
Disponible
199 900€ Appt. - 38.5m2 2ème
Voir
Disponible
202 900€ Appt. - 38.5m2 3ème
Voir
Disponible
202 900€ Appt. - 38.5m2 3ème
Voir
Disponible
307 900€ Appt. - 61.62m2
Le bon plan
3ème
Voir
Disponible
299 900€ Appt. - 61.1m2 3ème
Voir
Disponible
309 900€ Appt. - 61.63m2 4ème
Voir
Disponible
205 900€ Appt. - 38.5m2 4ème
Voir
Disponible
209 900€ Appt. - 38.5m2 4ème
Voir
Disponible
312 900€ Appt. - 61.62m2 4ème
Voir
Disponible
304 900€ Appt. - 61.2m2 4ème
Voir
Disponible
214 900€ Appt. - 38.42m2 5ème
Voir
Disponible
212 900€ Appt. - 38.5m2 5ème
Voir
Disponible
212 900€ Appt. - 38.5m2 5ème
Voir
Disponible
219 900€ Appt. - 38.42m2 6ème
Voir
Disponible
217 900€ Appt. - 38.5m2 6ème
Voir
Disponible
217 900€ Appt. - 38.5m2 6ème
Voir
Disponible
219 900€ Appt. - 38.42m2 6ème
Voir
Disponible
222 900€ Appt. - 38.42m2 7ème
Voir
Disponible
220 900€ Appt. - 38.5m2 7ème
Voir
Disponible
220 900€ Appt. - 38.5m2 7ème
Voir
Disponible
222 900€ Appt. - 38.42m2 7ème
Voir
Disponible
519 900€ Appt. - 92.35m2 8ème
Voir
Disponible
459 900€ Appt. - 83.47m2 8ème
Voir
Disponible
459 900€ Appt. - 83.47m2 8ème
Voir
Disponible
509 900€ Appt. - 92.46m2 8ème
Voir
Disponible
216 900€ Appt. - 39.03m2 7ème
Voir
Disponible
224 900€ Appt. - 39.03m2 8ème
Voir
Disponible
227 900€ Appt. - 39.03m2 9ème
Voir
Disponible
229 900€ Appt. - 39.03m2 10ème
Voir
Disponible
319 900€ Appt. - 66.35m2 11ème
Voir
Disponible
323 900€ Appt. - 66.36m2 12ème
Voir
Disponible
328 900€ Appt. - 66.36m2 13ème
Voir
Disponible
326 900€ Appt. - 66.37m2 13ème
Voir
Disponible
331 900€ Appt. - 66.36m2 14ème
Voir
Disponible
329 900€ Appt. - 66.37m2 14ème
Voir
Disponible
339 900€ Appt. - 66.36m2 15ème
Voir
Disponible
334 900€ Appt. - 66.36m2 15ème
Voir
Disponible
639 900€ Appt. - 119.92m2 16ème
Voir
Disponible
669 900€ Appt. - 117.64m2 16ème
DO NOT CLICK