Prix
578 000€
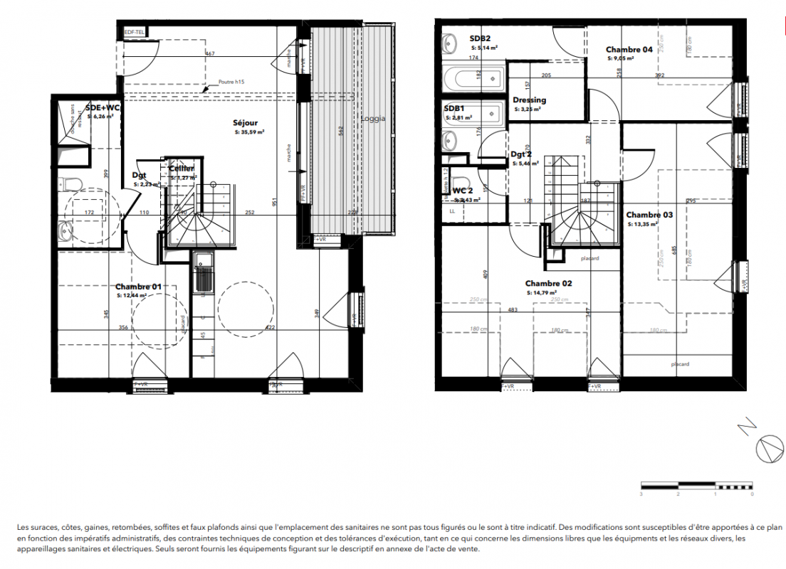
Type
Appt. au 0-RDC
Pièces
T5
Surface
116.54 m²
Exposition
-
Ville
Saint-Lary-Soulan (65170)
Livraison
2ème trimestre 2026
Informations
01 81 80 39 10

Présentation du programme "Les Chalets D'Or"

 Les amoureux de la nature découvriront des sites naturels d’exception tels que la réserve naturelle du Néouvielle et d’Aulon et le parc national d’Ordesa en Espagne. Située à 830m d’altitude, la ville vous réserve des vues spectaculaires sur les montagnes environnantes, offrant ainsi un terrain de jeu idéal pour les amoureux de la nature. A chaque saison, vous trouverez une multitude d’activités à pratiquer dans cette région.Ce village dispose également de nombreux labels (Famille+, Pays d’art et d’histoire, …) qui témoignent de la qualité de ses installations et de son patrimoine. 

Autres logements T5 du programme "Les Chalets D'Or"

Pas de logements disponibles
DO NOT CLICK