589 000€
Maison au 0-RDC
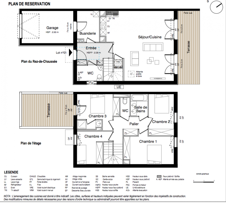
T5
118.03 m²
-
Saint-Lary-Soulan (65170)
1er trimestre 2027
01 81 80 39 10
Présentation du programme "L'OUREA - LES CHALETS"
[ VOTRE CHALET À LA MONTAGNE – TRAVAUX EN COURS ] – SAINT-LARY-SOULAN – Les chalets L’OUREA bénéficient d’un emplacement privilégié au cœur des Pyrénées, dans une station de montagne dynamique proposant des activités tout au long de l’année, à seulement 20 minutes de l’Espagne.
Composés de 4 à 5 pièces, les chalets sont situés à 5 minutes à pied du centre-ville, du téléphérique et des départs de randonnée. En empruntant le chemin des Écoliers, vous rejoignez la fontaine Sapin, emblème de Saint-Lary-Soulan, ainsi que l’office de tourisme et l’ensemble des commodités.
Alliant tradition et modernité, les chalets L’OUREA ont été conçus pour offrir fonctionnalité, confort, volumes généreux et belle luminosité. Les pièces de vie s’ouvrent sur un jardin privatif, permettant de profiter pleinement du cadre naturel et de vues dégagées sur les massifs environnants.
Un chalet à votre image : vous avez la possibilité de personnaliser votre futur lieu de vie, en choisissant vos finitions et aménagements, afin de créer un intérieur unique, adapté à vos envies.
Selon votre situation, ce projet peut être éligible au Prêt à Taux Zéro (PTZ)*.
*Voir conditions sur la page Mentions légales de notre site Vianova.fr.
Les informations sur les risques auxquels ce bien est exposé sont disponibles sur www.georisques.gouv.fr
Contactez nos conseillers Lamotte à Toulouse ou rendez-vous sur LAMOTTE.FR pour en savoir plus.
Autres logements T5 du programme "L'OUREA - LES CHALETS"
| Disponibilité | Prix | No | Genre | Pièces | Surface | Étage | Disponibilité | Prix | ||
|---|---|---|---|---|---|---|---|---|---|---|
| Voir | Disponible | 599 000€ | Lot 02 | Maison | T5 | 118.03m2 | 0-RDC | Disponible | 599 000€ | Voir |
| Voir | Disponible | 599 000€ | Lot 03 | Maison | T5 | 118.03m2 | 0-RDC | Disponible | 599 000€ | Voir |
| Voir | Disponible | 599 000€ | Lot 05 | Maison | T5 | 118.03m2 | 0-RDC | Disponible | 599 000€ | Voir |
| Voir | Disponible | 589 000€ | Lot 06 | Maison | T5 | 118.03m2 | 0-RDC | Disponible | 589 000€ | Voir |

