74 574€
310 382€
630€
Type
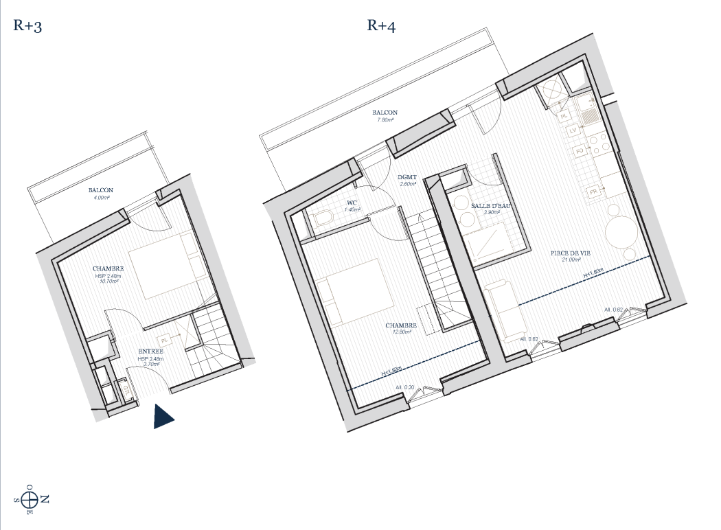
Appt. au 3ème
Pièces
T3
Surface
56.1 m²
Exposition
Est
Ville
Béziers (34500)
Livraison
-
Informations
01 81 80 39 10

Présentation du programme "Grand Hôtel Moderne"

Traversée par l’Orb, entourée par la mer Méditerranée et la plaine viticole du Languedoc, Béziers est placée sur la Via Domitia romaine. Alors qu’on y compte plus de 1000 hôtels particuliers, Béziers sait aussi se moderniser : de nombreux aménagements ont été réalisés sur les allées Paul Riquet ou la gare. Située à 10 km de la plage de Valras, c’est un des derniers littoraux méditerranéens non bâtis. Alors qu’elle a été choisie pour y implanter une Giga Factory de piles à hydrogène dans le cadre de la décarbonisation de l’Europe, Béziers a su faire de son passé industriel un véritable atout. L'opération permettra la restauration de 56 logements du T1 au T3 duplex. 

Autres logements T3 du programme "Grand Hôtel Moderne"

Disponibilité Prix Genre Pièces Surface Étage
Voir
Disponible
448 965€ Appt. T3 65.18m2 1er
Voir
Disponible
433 710€ Appt. T3 62.92m2 3ème
Voir
Disponible
404 477€ Appt. T3 52.9m2 1er
Voir
Disponible
413 849€ Appt. T3 54.4m2 2ème
DO NOT CLICK