Prix
179 716€  (TVA 20%)
158 000€  (TVA 5.5%)
Type
Appt. au 0-RDC
Pièces
-
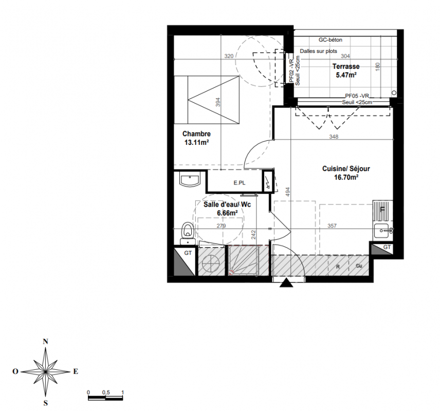
Surface
36.47 m²
Exposition
-
Ville
Montpellier (34000)
Livraison
4ème trimestre 2025
Informations
01 81 80 39 10

Présentation du programme "Le Triptyque"

FRAIS DE NOTAIRE OFFERTS + 2 000 € DE REMISE PAR PIÈCE*

EMMÉNAGEZ DÈS MAINTENANT
ÉLIGIBLE au dispositif Jeanbrun - Le Triptyque*

SITUATION ET CADRE DE VIE :

- Résidence neuve idéalement située à proximité immédiate du TRAMWAY.

- Accès direct à toutes les commodités : commerces, écoles et transports.

- Un poumon vert en ville : 50% de la résidence est dédiée aux espaces verts.

VOTRE APPARTEMENT :

- Dernières opportunités du STUDIO au 3 PIÈCES (T3).

- Grandes ouvertures pour un éclairage naturel optimal.

- Bel espace extérieur privatif pour chaque logement (balcon ou terrasse).

PLACE DE PARKING incluse pour chaque habitant.

LE PLUS PIERREVAL :

- DISPONIBILITÉ IMMÉDIATE : emménagez sans attendre !

Contactez-nous pour visiter votre futur appartement dès cette semaine !

*Voir conditions sur notre site internet. Voir conditions auprès de notre conseiller.

Autres logements - du programme "Le Triptyque"

Pas de logements disponibles
DO NOT CLICK