Prix
445 000€
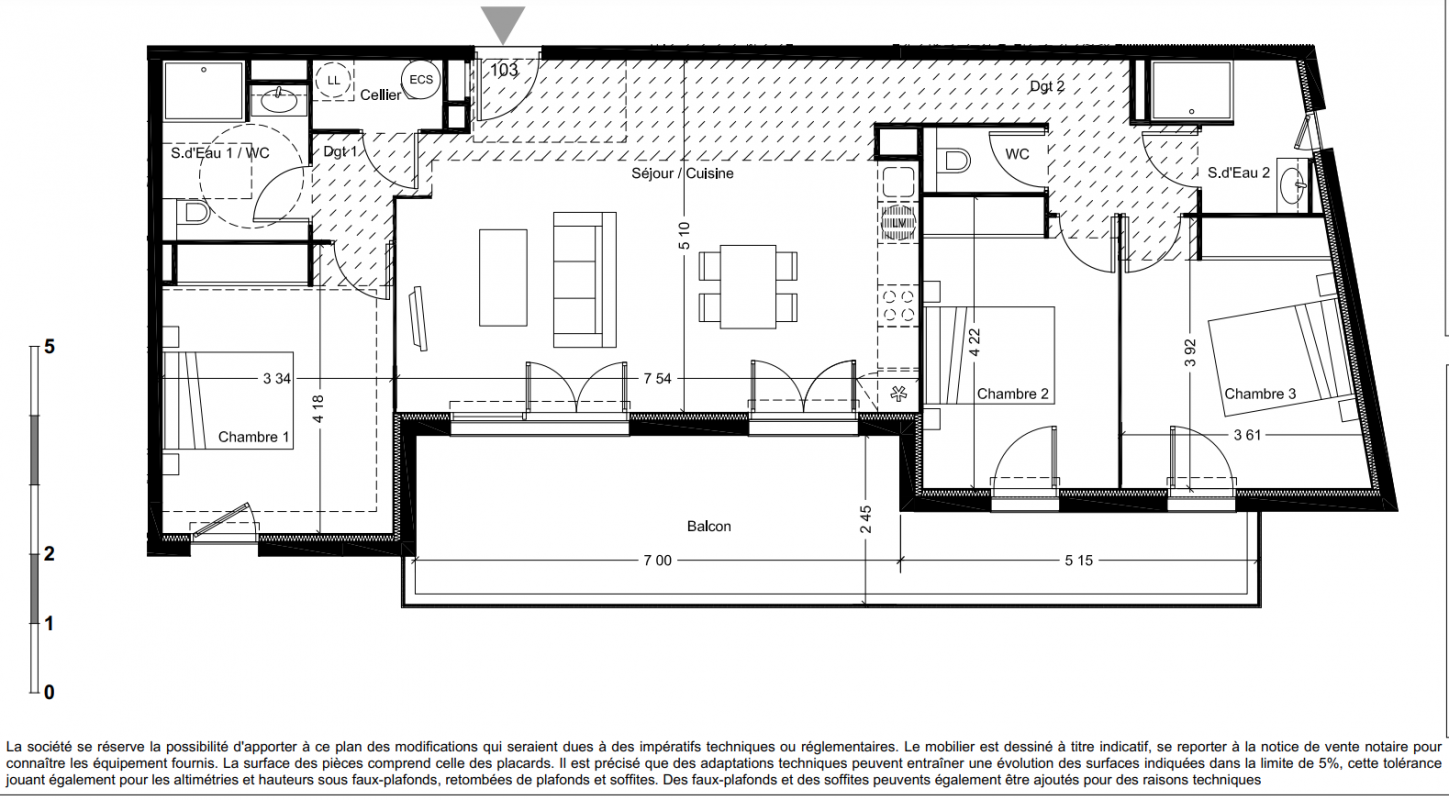
Type
Appt. au 1er
Pièces
T4
Surface
95.7 m²
Exposition
-
Ville
Saint-Cyprien (66750)
Livraison
1er trimestre 2028
Informations
01 81 80 39 10

Présentation du programme "BLUE GARDEN"

Pensés comme de véritables lieux de vie, les appartements s'ouvrent sur de belles terrasses ensoleillées, balcons ou jardins privatifs, avec des espaces intérieurs généreux, aux volumes soigneusement étudiés.

Un cadre de vie privilégié
À deux pas du centre commerçant de Saint-Cyprien Village, BLUE GARDEN bénéficie d'un environnement calme et verdoyant, tout en restant à proximité immédiate :
- des plages de la Méditerranée,
- du golf international de Saint-Cyprien,
- du parc de la Prade,
- des équipements culturels et sportifs (piscine, médiathèque, tennis...).

Autres logements T4 du programme "BLUE GARDEN"

Disponibilité Prix Genre Pièces Surface Étage
Voir
Disponible
490 000€ Appt. T4 113.6m2
Le bon plan
0-RDC
DO NOT CLICK