Prix
91 680€
91 680€
Type
Appt. au 3ème
Appt. au 3ème
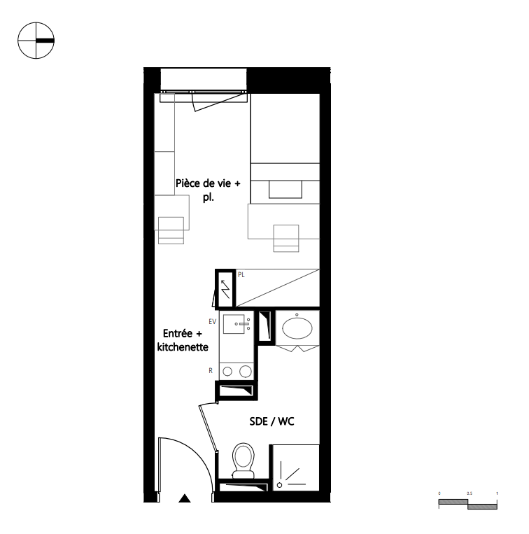
Pièces
Studio
Studio
Surface
18.37 m²
18.37 m²
Exposition
Ouest
Ouest
Ville
Montauban (82000)
Montauban (82000)
Livraison
3ème trimestre 2025
3ème trimestre 2025
Informations
01 81 80 39 10
01 81 80 39 10
Présentation du programme "STUDENTLY MONTAUBAN"
La résidence STUDENTLY MONTAUBAN s’intègre parfaitement dans son environnement par son architecture moderne et élégante. Composée de 102 logements, T1, T1 bis et T2, répartis dans 1 bâtiment, elle offre des espaces de vie pratiques et conviviaux (salon, salle de jeux, salle de fitness, cafétéria...). À l’extérieur, les résidents pourront profiter d’une grande terrasse et d'un bel espace vert aménagé avec boulodrome, barbecues et verger.