346 510€
- €
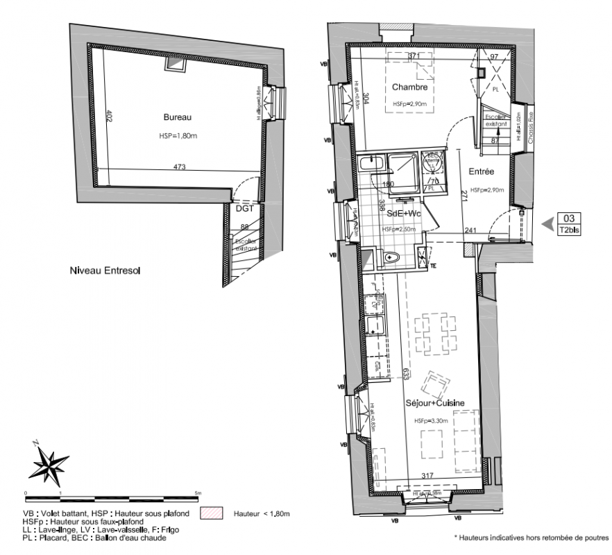
Appt. au 0-RDC
T2
63.57 m²
Est
Nantes (44000)
4ème trimestre 2026
01 81 80 39 10
Présentation du programme "NANTES METROPOLE - BEL ABORD"
Surplombant la Sèvre Nantaise, la demeure Bel Abord offre un cadre de vie bucolique aux portes de la ville de Nantes. Édifiée au XVIIIe siècle, Bel Abord est située sur les hauteurs de Vertou, entre fleuve et verdure.
Sur un emplacement convoité et privilégié de la ville, la grandeur de la propriété est à l’image de son histoire : fascinante. Calme, sérénité et qualité de vie se côtoient au quotidien dans cette demeure et raviront les futurs habitants de cette bâtisse d’exception.
Au coeur d’un écrin de verdure, Bel Abord porte aussi son charme grâce à la remarquable Fabrique de Jardin conservée dans le parc de la copropriété. Ce lieu fut aménagé par la famille Tertrais, passionnée par le patrimoine de la Renaissance italienne.
La maison de maître bénéficie d’un accès direct à la Sèvre Nantaise par ce parc payager.

