Prix
201 100€
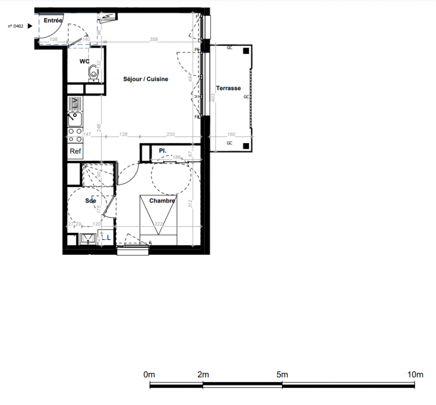
Type
Appt. au 4ème
Pièces
T2
Surface
43.09 m²
Exposition
Sud
Ville
Orvault (44700)
Livraison
3ème trimestre 2027
Informations
01 81 80 39 10

Présentation du programme "Programme neuf Orvault (44700)"

Achetez votre appartement neuf à Orvault et profiter de nos offres exceptionnelles du moment ! Le long de la route de Vannes, au coeur d'un ensemble de plusieurs bâtiments d'une grande variété architecturale, se trouve le futur poumon vert du quartier Néo à Orvault, où la nature s'illustre pleinement créant ainsi des zones de détente, de rencontre ou de jeux. Répondant parfaitement aux aspirations actuelles, les circulations douces ont pris le pas sur la voiture au travers de cheminements piétonniers et de pistes cyclables.Un large choix d'appartements, du 2 au 4 pièces s'offre à vous, tous prolongés par un balcon, un jardin privatif ou une magnifique terrasse aux vues exceptionnelles. Leurs surfaces intérieures profitent d'un maximum d'ensoleillement grâce à leurs orientations optimisées.Contactez vite un de nos conseillers pour découvrir tous nos logements neufs à Orvault et pour concrétiser votre projet immobilier neuf !

Autres logements T2 du programme "Programme neuf Orvault (44700)"

Disponibilité Prix Genre Pièces Surface Étage
Voir
Disponible
196 100€ Appt. T2 43.09m2 3ème
DO NOT CLICK