319 000€
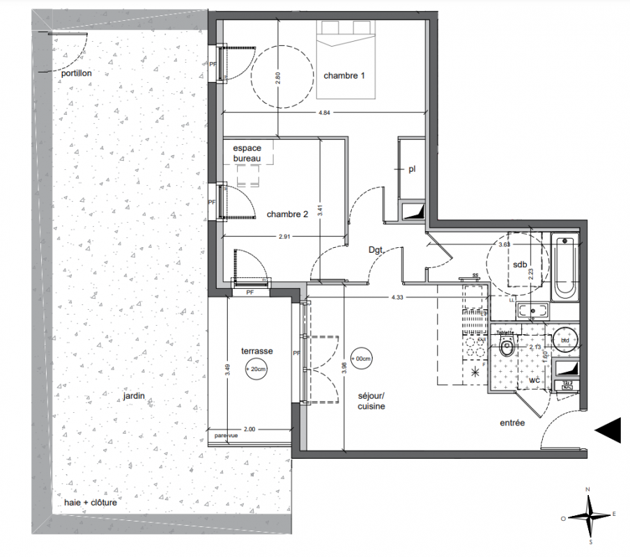
Appt. au 0-RDC
T3
55.52 m²
-
Saint-Nazaire (44600)
2ème trimestre 2027
01 81 80 39 10
Présentation du programme "Villès-Marine"
Entre plages et centre-ville, une adresse privilégiée à Saint-Nazaire
Avec une croissance démographique en hausse constante, Saint-Nazaire s’impose parmi les villes où investir dans le grand Ouest. Référence internationale pour la construction navale et aéronautique, elle se distingue par son esprit avant-gardiste et son succès dans l’innovation industrielle, la recherche scientifique et la créativité culturelle. Entre Loire, océan atlantique et Marais de la Bièvre, cette ville-jardin séduit les familles en quête d’une belle qualité de vie et convainc tous les profils. À deux pas des plages et des commodités, parfaitement reliée au centre-ville et à la gare par les bus, la qualité de l’adresse s’associe au confort de la résidence pour vous assurer un succès locatif.