Prix
289 000€
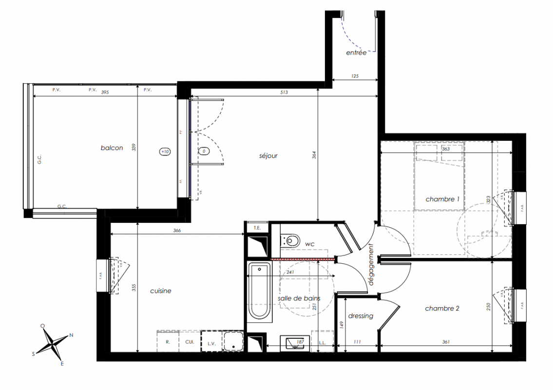
Type
Appt. au 1er
Pièces
T3
Surface
65.93 m²
Exposition
Sud
Ville
Avrillé (49240)
Livraison
1er trimestre 2031
Informations
01 81 80 39 10

Présentation du programme "L'Olympe"

À deux pas du cœur de la ville, une belle adresse résidentielle
Angers, un placement immobilier à fort potentiel : classée première ville de France pour sa qualité de vie et première ville verte, Angers séduit par son cadre de vie exceptionnel, à seulement 35 min de Nantes et 1h30 de Paris en TGV. Forte d'une croissance démographique dynamique, Angers compte désormais plus de 157 000 habitants, 300 000 dans l’ensemble de la métropole. Cette expansion soutient un marché immobilier en pleine effervescence, particulièrement dans les quartiers attractifs et bien desservis.Avec l'évolution des grands projets urbains, dont l'aménagement des quais et l'extension du tramway, Angers attire de plus en plus d'habitants, consolidant ainsi son dynamisme économique et écologique. Investir à Angers aujourd'hui, c'est miser sur un cadre de vie équilibré entre urbanité et nature, avec une rentabilité locative particulièrement intéressante, notamment en régime LMNP. * Source : Google Maps** Source : https://www.villesetvillagesouilfaitbonvivre.com/vivre-a-Angers-49100/49007/49

Autres logements T3 du programme "L'Olympe"

Disponibilité Prix Genre Pièces Surface Étage
Voir
Optionné
265 000€ Appt. T3 57.91m2 1er
Voir
Optionné
273 000€ Appt. T3 60.5m2 2ème
DO NOT CLICK