Prix
209 916€
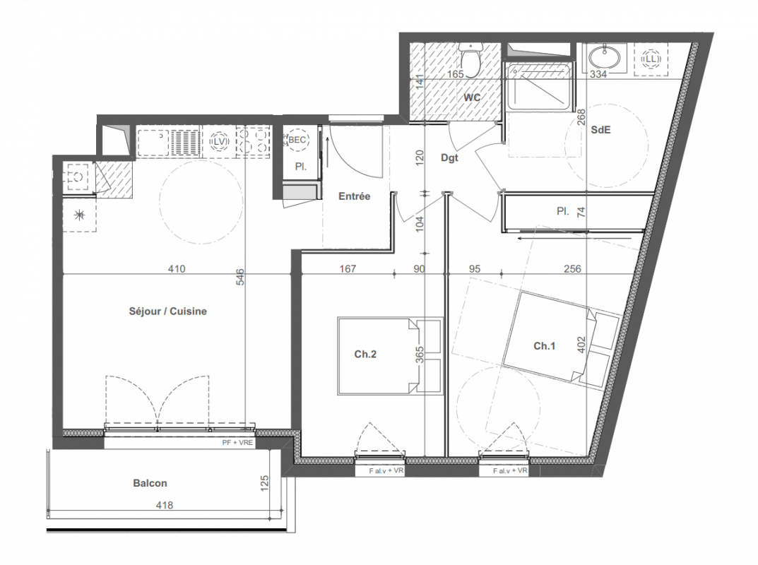
Type
Appt. au 3ème
Pièces
T3
Surface
66 m²
Exposition
Est
Ville
Challans (85300)
Livraison
2ème trimestre 2028
Informations
01 81 80 39 10

Présentation du programme "KALEA"

Autres logements T3 du programme "KALEA"

Disponibilité Prix Genre Pièces Surface Étage
Voir
Disponible
244 750€ Appt. T3 78m2
Le bon plan
4ème
DO NOT CLICK