Prix
385 500€
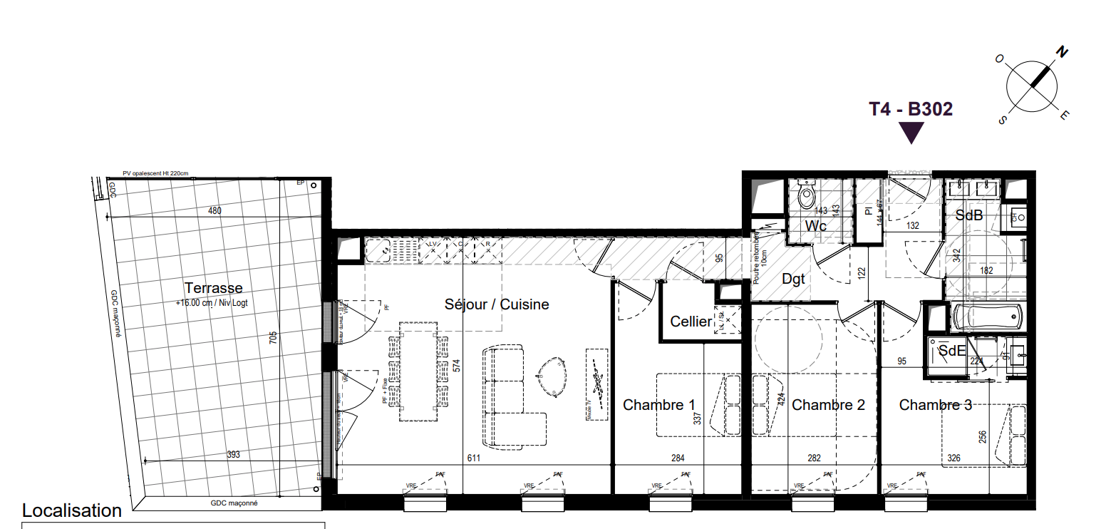
Type
Appt. au 3ème
Pièces
T4
Surface
90.34 m²
Exposition
Sud
Ville
Challans (85300)
Livraison
1er trimestre 2025
Informations
01 81 80 39 10

Présentation du programme "PASSAGE HORTENSE"

OFFRE COMMERCIALE - 2 000€ / pièce sur les 5 premières réservations du 17/11 au 15/12* LA RESIDENCE

Autres logements T4 du programme "PASSAGE HORTENSE"

Disponibilité Prix Genre Pièces Surface Étage
Voir
Disponible
261 611€ Appt. T4 101.17m2 1er
DO NOT CLICK