Prix
176 000€
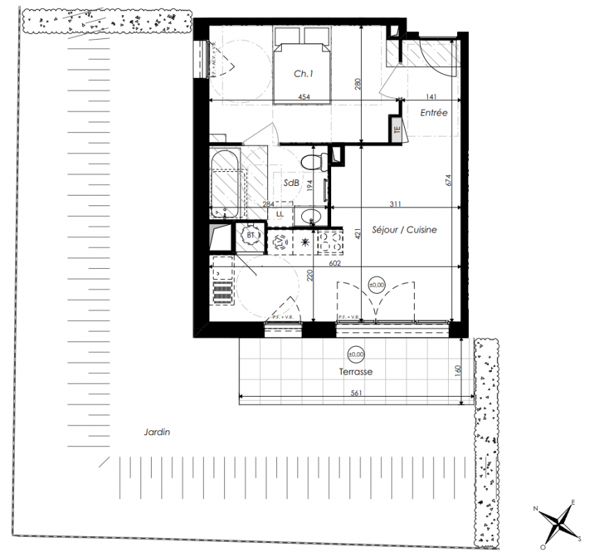
Type
Appt. au 0-RDC
Pièces
T2
Surface
40.46 m²
Le bon plan
Exposition
-
Ville
Le Fenouiller (85800)
Livraison
3ème trimestre 2028
Informations
01 81 80 39 10

Présentation du programme "Le Bocage"

Le Fenouiller, votre nouvelle adresse entre mer et nature !
Le Fenouiller réunit tous les atouts d'un placement patrimonial stratégique, entre littoral prisé et pôles économiques dynamiques.La proximité immédiate des bassins d'emplois de Saint-Gilles-Croix-de-Vie (pêche, agroalimentaire, nautisme), Challans (commerce, services, artisanat) et La Roche-sur-Yon (administrations, université, hôpital) assure une clientèle pérenne de familles et d'actifs. Nantes, accessible en un peu plus d'une heure, renforce encore l'attractivité du secteur.Les plages de Saint-Gilles-Croix-de-Vie, le port animé, les festivités estivales et la renommée touristique de la côte vendéenne génèrent une forte demande locative en saison, parfaitement adaptée à la location saisonnière comme aux résidences secondaires.Résidence principale, résidence secondaire ou rendement locatif : Le Fenouiller s'adapte à tous les projets. La rareté de l'offre immobilière et la diversité de la demande garantissent pérennité et valorisation patrimoniale dans la durée. * Source : Google Maps

Autres logements T2 du programme "Le Bocage"

Disponibilité Prix Genre Pièces Surface Étage
Voir
Disponible
159 000€ Appt. T2 37.52m2 0-RDC
Voir
Disponible
166 000€ Appt. T2 37.52m2 1er
Voir
Disponible
176 000€ Appt. T2 40.46m2 0-RDC
DO NOT CLICK