486 900€
Maison au 0-RDC
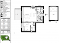
T5
103.94 m²
Sud
Saint-Hilaire-de-Riez (85270)
1er trimestre 2026
01 81 80 39 10
Présentation du programme "LES JARDINS D'ILARIS"
OFFRE EXCEPTIONNELLE : Cuisine offerte* + 0 € frais de notaire* !ÉLIGIBLE JEANBRUN : NOUVEAU DISPOSITIF D’INVESTISSEMENT LOCATIF(1) : 0 fiscalité sur vos revenus !Contactez-nous pour une simulation. LIVRAISON IMMÉDIATE : Dernières maisons neuves 2 ou 4 chambres à Saint-Hilaire-de-Riez - MAISON TÉMOIN À VISITER SUR RDV !LES JARDINS D'ILARIS est un bel ensemble résidentiel proposant des appartements et des maisons, au cœur d'un quartier résidentiel calme à proximité de toutes les commodités, à 1 km de la plage de Boisvinet et du charmant bourg de Saint-Gilles-Croix-de-Vie.Chaque maison dispose de son jardin privatif, allant jusqu'à 800 m², idéal pour profiter des beaux jours.
Livraisons maisons de ville : mars 2026
Livraisons maisons individuelles : juin 2026
PRÊT À TAUX ZÉRO 0% ! Profitez du PTZ, un vrai coup de pour l'achat de votre maison de ville !Envie d’investir et de préparer l’avenir ? Réalisez ici un investissement pertinent au cœur d’une station balnéaire prisée. Nous avons établi un partenariat avec la conciergerie HOOMY afin d’assurer des revenus locatifs en LMNP (Loueur Meublé Non Professionnel), elle vous laissera également la possibilité de jouir de votre bien à votre convenance. Cette solution vous permet d’optimiser la fiscalité et la rentabilité de votre investissement. Nous aurons également la capacité de vous accompagner pour votre financement, l’établissement bancaire prendra en compte 90% de vos revenus locatifs qui pourront vous aider à augmenter votre capacité d’emprunt. *Voir conditions de l'offre sur lesjardinsdilaris.fr(1) Le statut du bailleur privé (dit dispositif Jeanbrun) repose sur un amortissement du prix d’acquisition d’un logement neuf situé dans un immeuble collectif. Le logement doit être loué nu à titre de résidence principale pendant 9 ans à un locataire remplissant des conditions de ressources et à un loyer plafonné.


