Prix
2 220 000€
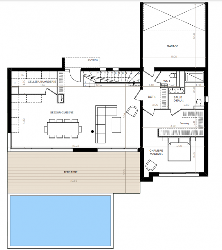
Type
Appt. au 0-RDC
Pièces
T6
Surface
204.85 m²
Exposition
-
Ville
Mougins (06250)
Livraison
1er trimestre 2028
Informations
01 81 80 39 10

Présentation du programme "LES COSTES - DOMAINE PRIVE"

Programme neuf Mougins - 06250

Autres logements T6 du programme "LES COSTES - DOMAINE PRIVE"

Disponibilité Prix Genre Pièces Surface Étage
Voir
Disponible
2 320 000€ Appt. T6 216.5m2 0-RDC
Voir
Disponible
2 245 000€ Appt. T6 204.7m2 0-RDC
Voir
Disponible
2 970 000€ Appt. T6 279.2m2 0-RDC
DO NOT CLICK