367 000€
Appt. au 1er
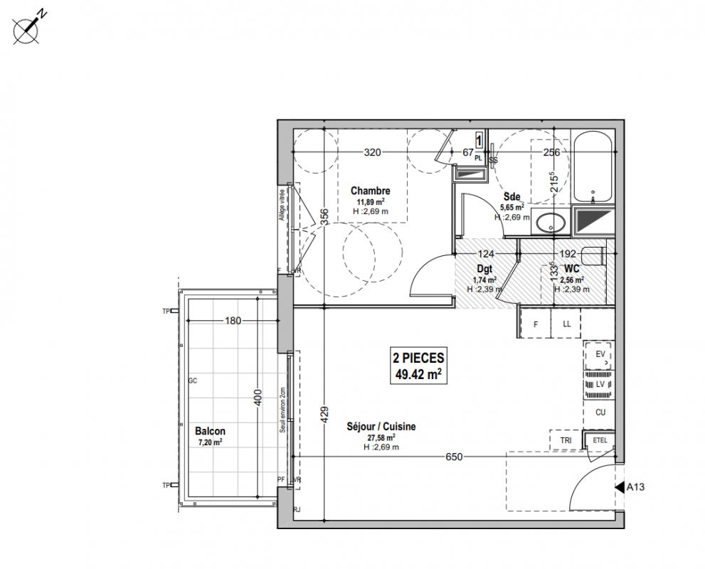
T2
49.13 m²
Sud
Marseille 8ème (13008)
2ème trimestre 2027
01 81 80 39 10
Présentation du programme " L'ORÉE BORÉLY "
APPARTEMENTS D’EXCEPTION AUX VUES IMPRENABLES SUR LA MER ! GRANDS LOGEMENTS ENCORE DISPONIBLES !
Une situation rare et recherchée dans le très prisé 8ᵉ arrondissement de Marseille, offrant des panoramas uniques sur la Méditerranée et le massif des Calanques !Envie d’investir ? Cette résidence est éligible au nouveau dispositif d’investissement locatif JEANBRUN, pour constituer un patrimoine, réduire vos impôts et préparer votre retraite !
Boulevard Joseph Vernet, à 700 m des plages du Prado, L’Orée Borély s’affirme comme une adresse de prestige. Nichée au calme d’une impasse et au cœur d’un écrin de verdure, la résidence offre des vues privilégiées sur la Grande Bleue, les Calanques ou le parc arboré. Ici, tout est réuni pour faire de votre lieu de vie un véritable privilège…
Pensés pour un confort absolu, les appartements, aux dimensions remarquables, se prolongent par de vastes espaces extérieurs, idéals pour profiter pleinement du soleil et de l’art de vivre marseillais.
Du 2 au 5 pièces, chaque appartement bénéficie d’un extérieur généreux, aux surfaces rares et aux prestations uniques : vues mer, balcon, solarium ou jardin privatif jusqu’à 180 m², salles de bains élégamment équipées, hauteur sous plafond de 2,70 m, carrelage dans toutes les pièces, menuiseries aluminium, système de rafraîchissement par pompe à chaleur…
La résidence propose également des équipements hors normes : salle de sport, buanderie commune, loge de gardien, ainsi que des halls d’entrée au design particulièrement raffiné. Pour un confort et une sécurité optimale, l’ensemble des stationnements est situé en sous-sol.
Les prix affichés s’entendent hors stationnement.
Autres logements T2 du programme " L'ORÉE BORÉLY "
| Disponibilité | Prix | No | Genre | Pièces | Surface | Étage | Disponibilité | Prix | ||
|---|---|---|---|---|---|---|---|---|---|---|
| Voir | Disponible | 366 000€ | A27 | Appt. | T2 | 50.8m2 | 2ème | Disponible | 366 000€ | Voir |
| Voir | Optionné | 373 000€ | A37 | Appt. | T2 | 50.8m2 | 3ème | Optionné Mais pas encore vendu 😉 | 373 000€ | Voir |
| Voir | Disponible | 362 000€ | B23 | Appt. | T2 | 46.39m2 | 2ème | Disponible | 362 000€ | Voir |
| Voir | Disponible | 368 000€ | B33 | Appt. | T2 | 46.39m2 | 3ème | Disponible | 368 000€ | Voir |
| Voir | Disponible | 363 000€ | C14 | Appt. | T2 | 48.39m2 | 1er | Disponible | 363 000€ | Voir |
| Voir | Disponible | 374 000€ | C24 | Appt. | T2 | 48.39m2 | 2ème | Disponible | 374 000€ | Voir |
| Voir | Disponible | 366 000€ | C28 | Appt. | T2 | 50.36m2 | 2ème | Disponible | 366 000€ | Voir |
| Voir | Disponible | 378 000€ | C38 | Appt. | T2 | 50.36m2 | 3ème | Disponible | 378 000€ | Voir |
| Voir | Disponible | 382 000€ | C34 | Appt. | T2 | 48.39m2 | 3ème | Disponible | 382 000€ | Voir |