Ce lot n’est plus disponible chez VIANOVA ou est vendu.

Vous pouvez revenir dans 24h pour vérifier le stock à jour ou contacter un conseiller Vianova pour vérifier le stock en direct.
Vous pouvez également continuer votre recherche sur notre site « ici ».

Prix
172 741€  (TVA 20%)
158 346€  (TVA 10%)
Type
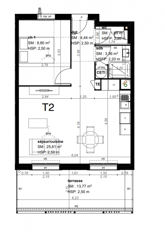
Appt. au 1er
Pièces
T2
Surface
44.9 m²
Exposition
Ouest
Ville
Ventabren (13122)
Livraison
3ème trimestre 2027
Informations
01 81 80 39 10

Présentation du programme "DOMAINE OLÉA"

Ventabren s’affirme comme l’une des communes les plus recherchées du Pays d’Aix. Son vieux bourg perché, ses bâtiments remarquables et ses paysages lui confèrent une identité provençale forte et authentique. Au coeur du quartier de l’Héritière, la résidence prend place dans le nouveau coeur de ville de Ventabren, entre la rue Raymond‑Normand et l’avenue du Mas des Platanes. La résidence reprend les codes de la Provence, avec ses toitures en tuiles, ses façades aux tons naturels et ses volumes sobres et raffinés. Entourée d’espaces verts soigneusement aménagés, la résidence dégage une atmosphère paisible, pleinement intégrée au domaine.

Autres logements T2 du programme "DOMAINE OLÉA"

Disponibilité Prix Genre Pièces Surface Étage
Voir
Archivé
170 231€ Appt. T2 44.22m2 1er
DO NOT CLICK