204 800€ (TVA 20%)
180 053€ (TVA 5.5%)
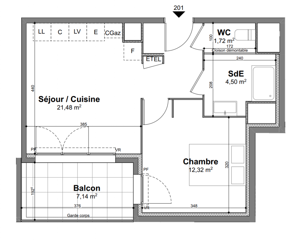
Appt. au 2ème
T2
40.02 m²
Est
Brignoles (83170)
3ème trimestre 2028
01 81 80 39 10
Présentation du programme "Programme neuf Brignoles (83170)"
Nouvelle résidence à BRIGNOLES : soyez parmi les premiers à choisir votre appartement neuf du 2 au 4 pièces avec extérieur. Et en plus grâce à la TVA réduite à 5,5%, devenez propriétaire pour le même prix que votre loyer !Brignoles, située au cœur du Var, est une ville pleine de charme qui combine à merveille tradition provençale et modernité. Bénéficiant d’un cadre naturel exceptionnel, elle est nichée au pied du massif de la Sainte-Baume et offre à ses habitants un cadre de vie privilégié. Avec son centre-ville animé, ses commerces de proximité, ses marchés locaux et ses restaurants, Brignoles propose une ambiance conviviale et chaleureuse. Bien desservie par l'autoroute A8 et les transports en commun, la ville permet de rejoindre facilement les grandes agglomérations avoisinantes tout en offrant la tranquillité d’un environnement à taille humaine.Ce nouveau programme immobilier est situé dans un quartier calme et verdoyant, le long des berges de Brignoles, offrant un cadre de vie agréable et paisible. Ce secteur résidentiel, à la fois proche des commerces, des écoles et des services, garantit une vie quotidienne pratique et agréable. Les espaces verts alentours, ainsi que la proximité du massif de la Sainte-Baume, offrent une dimension naturelle idéale pour ceux qui apprécient les moments de détente en plein air. Le quartier bénéficie également d’une excellente accessibilité grâce aux axes routiers et aux transports en commun, permettant de rejoindre rapidement le centre-ville ou les principales zones d’activité de la région.Situé rue Lice de Signon, ce programme se compose de 43 logements allant du 2 au 4 pièces, répartis sur trois niveaux. Chaque appartement bénéficie de balcons, loggias ou terrasses, offrant ainsi un espace extérieur privatif. L’architecture du bâtiment s’intègre parfaitement dans le cadre provençal, alliant esthétisme et confort. Les matériaux utilisés ont été soigneusement sélectionnés pour respecter l’harmonie du paysage environnant tout en apportant une touche de modernité. Le programme comprend également 66 places de parking, majoritairement en sous-sol, assurant un confort optimal aux résidents. Contactez vite un de nos conseillers pour découvrir tous nos appartements et être parmi les premiers à choisir votre logement !
Autres logements T2 du programme "Programme neuf Brignoles (83170)"
| Disponibilité | Prix | No | Genre | Pièces | Surface | Étage | Disponibilité | Prix | ||
|---|---|---|---|---|---|---|---|---|---|---|
| Voir | Disponible | 216 600€ | 005 | Appt. | T2 | 46.53m2 | 0-RDC | Disponible | 216 600€ | Voir |
| Voir | Disponible | 208 300€ | 010 | Appt. | T2 | 43.46m2 | 0-RDC | Disponible | 208 300€ | Voir |
| Voir | Disponible | 204 800€ | 106 | Appt. | T2 | 41.48m2 | 1er | Disponible | 204 800€ | Voir |
| Voir | Disponible | 204 800€ | 109 | Appt. | T2 | 43.71m2 | 1er | Disponible | 204 800€ | Voir |
| Voir | Disponible | 215 400€ | 111 | Appt. | T2 | 40.31m2 | 1er | Disponible | 215 400€ | Voir |
| Voir | Disponible | 209 500€ | 206 | Appt. | T2 | 41.72m2 | 2ème | Disponible | 209 500€ | Voir |
| Voir | Disponible | 208 300€ | 209 | Appt. | T2 | 43.71m2 | 2ème | Disponible | 208 300€ | Voir |
| Voir | Disponible | 218 900€ | 211 | Appt. | T2 | 43.72m2 | 2ème | Disponible | 218 900€ | Voir |
| Voir | Disponible | 216 600€ | 301 | Appt. | T2 | 40.02m2 | 3ème | Disponible | 216 600€ | Voir |
| Voir | Disponible | 208 900€ | 303 | Appt. | T2 | 37.92m2 | 3ème | Disponible | 208 900€ | Voir |
| Voir | Disponible | 220 500€ | 306 | Appt. | T2 | 41.48m2 | 3ème | Disponible | 220 500€ | Voir |
| Voir | Disponible | 214 200€ | 309 | Appt. | T2 | 43.71m2 | 3ème | Disponible | 214 200€ | Voir |
| Voir | Disponible | 229 000€ | 311 | Appt. | T2 | 40.31m2 | 3ème | Disponible | 229 000€ | Voir |
| Voir | Disponible | 201 100€ | 101 | Appt. | T2 | 40.02m2 | 1er | Disponible | 201 100€ | Voir |