280 400€ (TVA 20%)
246 518€ (TVA 5.5%)
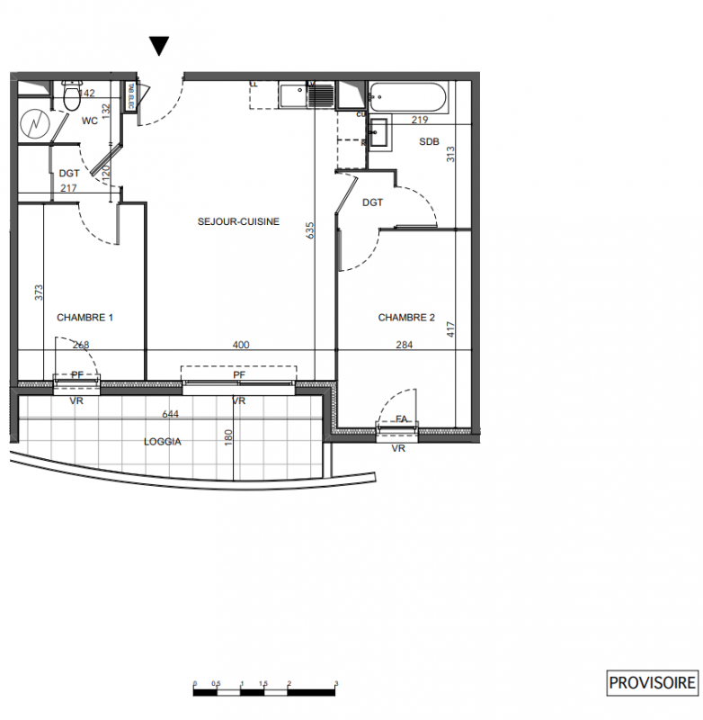
Appt. au 3ème
T3
61.52 m²
Est
La Seyne-sur-Mer (83500)
4ème trimestre 2027
01 81 80 39 10
Présentation du programme "Programme neuf La Seyne-sur-Mer (83500)"
TRAVAUX EN COURS à LA SEYNE-SUR-MER ! Achetez votre appartement neuf du 2 au 4 pièces avec espace extérieur ! Située sur le littoral varois, La Seyne-sur-Mer offre un cadre de vie privilégié entre mer et collines. Ville maritime dynamique, elle bénéficie d'un bassin d'emploi attractif porté par des acteurs majeurs du secteur naval. Sa proximité avec Toulon, accessible en seulement 10 min* en voiture, renforce son attractivité.Parfaitement connectée, la ville dispose d'un réseau de transports efficace. L'autoroute A50 permet de rejoindre facilement Marseille, tandis que la gare de La Seyne-sur-Mer, située à seulement 7 min* en transport en commun, dessert rapidement Hyères ou encore Marseille. De plus, un réseau de bus bien développé assure une mobilité fluide au quotidien, notamment grâce à l'arrêt _ Citroën _ (ligne 2), situé à seulement 2 minutes à pied permettant de rejoindre l'ensemble de la ville. Les amoureux du littoral apprécieront la proximité du port de La Seyne-sur-Mer, offrant de belles opportunités de balades et de découvertes maritimes.Notre nouveau programme achève la transformation de ce nouveau quartier résidentiel, bénéficiant de nombreux points clés accessibles en voiture. Le quotidien y est facilité par la présence d'un centre commercial à 7 min*, d'un hôpital à 4 min*, ainsi que de la mairie à 8 min*, simplifiant les démarches administratives. L'environnement est idéal pour les familles avec des établissements scolaires à proximité, de la maternelle au collège, garantissant un parcours éducatif complet à quelques pas du domicile.Pensée pour offrir un cadre de vie agréable et fonctionnel, la résidence se situe dans un quartier calme. Elle propose des appartements du 2 au 4 pièces, tous dotés d'un espace extérieur privatif sous forme de terrasse ou loggia. Pour plus de confort, un stationnement en sous-sol est prévu pour l'ensemble des résidents.Contactez dès maintenant un de nos conseillers pour choisir l'appartement neuf de vos rêves à La Seyne-sur-Mer !
Autres logements T3 du programme "Programme neuf La Seyne-sur-Mer (83500)"
| Disponibilité | Prix | No | Genre | Pièces | Surface | Étage | Disponibilité | Prix | ||
|---|---|---|---|---|---|---|---|---|---|---|
| Voir | Optionné | 293 500€ | A101 | Appt. | T3 | 65.42m2 Le bon plan | 1er | Optionné Mais pas encore vendu 😉 | 293 500€ | Voir |
| Voir | Disponible | 298 200€ | A201 | Appt. | T3 | 65.42m2 | 2ème | Disponible | 298 200€ | Voir |
| Voir | Disponible | 310 000€ | A304 | Appt. | T3 | 68.83m2 | 3ème | Disponible | 310 000€ | Voir |
| Voir | Disponible | 314 800€ | A404 | Appt. | T3 | 68.79m2 | 4ème | Disponible | 314 800€ | Voir |