302 900€
Appt. au 0-RDC
-
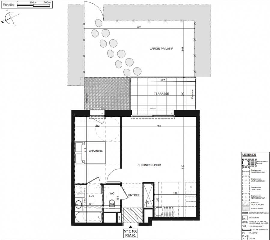
45.66 m²
-
Poisy (74330)
4ème trimestre 2027
01 81 80 39 10
Présentation du programme "CELESTE"
Céleste - Appartements neufs à Poisy.
FRAIS DE NOTAIRE OFFERTS *
Située chemin des Pacheux, la résidence bénéficie d'un environnement résidentiel privilégié, à proximité des commerces, des établissements scolaires et des transports permettant de rejoindre Annecy facilement.
La résidence propose 44 logements en accession, accompagnés de stationnements en sous-sol et de locaux vélos, répondant aux attentes des actifs et des familles en quête d'un cadre de vie équilibré.
Pensée en harmonie avec son environnement, la résidence s'inscrit dans un écrin paysager soigné, composé d'essences locales, d'espaces végétalisés et de cheminements doux. Un espace central convivial favorise les échanges entre résidents, dans une atmosphère apaisée et naturelle.
Le projet intègre une démarche environnementale avec des aménagements favorisant la biodiversité (nichoirs, hôtel à insectes), des sols perméables et des espaces partagés comme des zones de compostage et des carrés aromatiques.
Les appartements proposent des espaces lumineux, ouverts sur l'extérieur et orientés pour valoriser les vues sur les montagnes environnantes. Les prestations ont été sélectionnées avec exigence : grandes baies vitrées, matériaux durables et finitions soignées pour un confort au quotidien.
Les avantages du programme
Les + du programme :
•Environnement naturel et vues dégagées sur les montagnes
•Résidence paysagère favorisant la biodiversité
•Stationnements en sous-sol et locaux vélos
•Espaces extérieurs privatifs et coeur d'îlot aménagé
•Conception conforme à la réglementation RE2020
Au quotidien, profitez d'un cadre de vie pratique et dynamique :
•Commerces de proximité et marché local
•Écoles de la maternelle au lycée accessibles rapidement
•Équipements sportifs et culturels à proximité
•Bus reliant Annecy et pistes cyclables facilitant les déplacements
•Accès rapide au centre d'Annecy en voiture
Un cadre de vie rare entre nature, confort et proximité d'Annecy, idéal pour habiter durablement ou réaliser un premier achat.
Contactez-nous dès maintenant au 04 84 31 44 61 pour plus d'informations ou pour étudier votre projet immobilier.
* Offre promotionnelle valable du 01/03/2026 au 30/04/2026 inclus, dans la limite des stocks disponibles, sous rése
Autres logements - du programme "CELESTE"
| Disponibilité | Prix | No | Genre | Pièces | Surface | Étage | Disponibilité | Prix | ||
|---|---|---|---|---|---|---|---|---|---|---|
| Voir | Disponible | 735 000€ | C001 | Appt. | - | 95.03m2 | 0-RDC | Disponible | 735 000€ | Voir |
| Voir | Disponible | 314 900€ | C102 | Appt. | - | 47.18m2 | 0-RDC | Disponible | 314 900€ | Voir |
| Voir | Optionné | 314 900€ | C103 | Appt. | - | 47.31m2 | 0-RDC | Optionné Mais pas encore vendu 😉 | 314 900€ | Voir |
| Voir | Disponible | 319 900€ | C107 | Appt. | - | 44.67m2 | 0-RDC | Disponible | 319 900€ | Voir |
| Voir | Disponible | 319 900€ | C110 | Appt. | - | 44.68m2 | 0-RDC | Disponible | 319 900€ | Voir |
| Voir | Disponible | 324 900€ | C203 | Appt. | - | 44.29m2 | 1er | Disponible | 324 900€ | Voir |
| Voir | Disponible | 791 500€ | C206 | Appt. | - | 114.55m2 | 1er | Disponible | 791 500€ | Voir |
| Voir | Disponible | 703 000€ | C207 | Appt. | - | 111.7m2 | 1er | Disponible | 703 000€ | Voir |
| Voir | Disponible | 324 900€ | C208 | Appt. | - | 44.83m2 | 1er | Disponible | 324 900€ | Voir |
| Voir | Disponible | 468 900€ | C301 | Appt. | - | 66.92m2 | 2ème | Disponible | 468 900€ | Voir |
| Voir | Disponible | 329 900€ | C302 | Appt. | - | 46.64m2 | 2ème | Disponible | 329 900€ | Voir |
| Voir | Disponible | 481 900€ | C305 | Appt. | - | 71.83m2 | 2ème | Disponible | 481 900€ | Voir |
| Voir | Disponible | 471 900€ | C306 | Appt. | - | 73.04m2 | 2ème | Disponible | 471 900€ | Voir |
| Voir | Disponible | 284 900€ | C307 | Appt. | - | 33.07m2 | 2ème | Disponible | 284 900€ | Voir |
| Voir | Disponible | 309 900€ | D001 | Appt. | - | 43.32m2 | 0-RDC | Disponible | 309 900€ | Voir |
| Voir | Disponible | 623 000€ | D003 | Appt. | - | 84.51m2 | 0-RDC | Disponible | 623 000€ | Voir |
| Voir | Disponible | 309 900€ | D101 | Appt. | - | 43.53m2 | 0-RDC | Disponible | 309 900€ | Voir |
| Voir | Disponible | 329 900€ | D103 | Appt. | - | 44.38m2 | 0-RDC | Disponible | 329 900€ | Voir |
| Voir | Optionné | 553 900€ | D104 | Appt. | - | 65.55m2 | 0-RDC | Optionné Mais pas encore vendu 😉 | 553 900€ | Voir |
| Voir | Disponible | 324 900€ | D106 | Appt. | - | 40.98m2 | 0-RDC | Disponible | 324 900€ | Voir |
| Voir | Disponible | 488 900€ | D201 | Appt. | - | 66.78m2 | 1er | Disponible | 488 900€ | Voir |
| Voir | Disponible | 474 900€ | D202 | Appt. | - | 65.47m2 | 1er | Disponible | 474 900€ | Voir |
| Voir | Disponible | 773 000€ | D203 | Appt. | - | 117.55m2 | 1er | Disponible | 773 000€ | Voir |
| Voir | Disponible | 334 900€ | D302 | Appt. | - | 45.78m2 | 2ème | Disponible | 334 900€ | Voir |