Prix
726 500€
Type
Appt. au 1er
Pièces
-
Surface
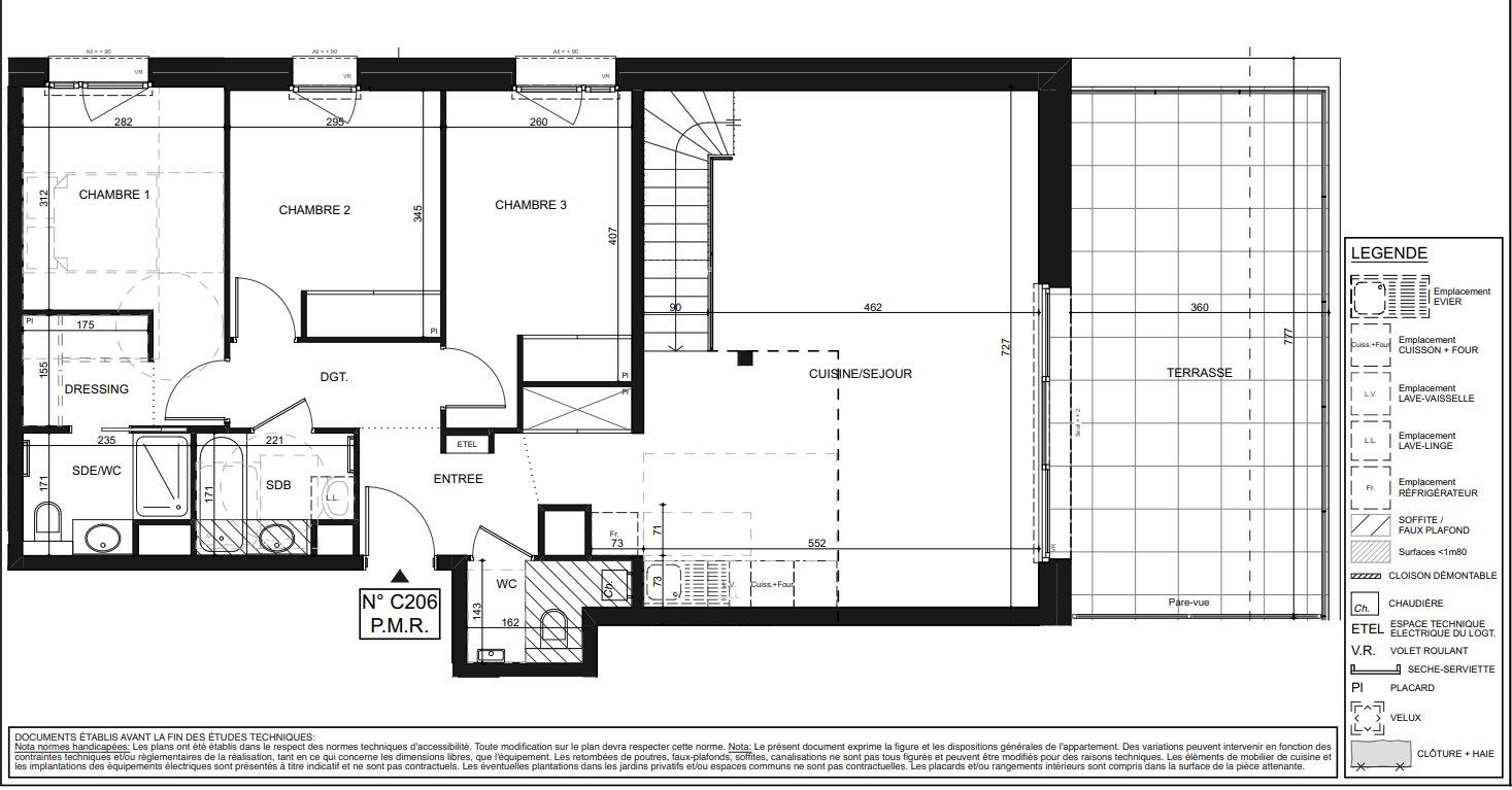
114.55 m²
Exposition
-
Ville
Poisy (74330)
Livraison
4ème trimestre 2027
Informations
01 81 80 39 10

Présentation du programme "CELESTE"

Céleste - Appartements neufs à Poisy.

FRAIS DE NOTAIRE OFFERTS *

Située chemin des Pacheux, la résidence bénéficie d'un environnement résidentiel privilégié, à proximité des commerces, des établissements scolaires et des transports permettant de rejoindre Annecy facilement.

La résidence propose 44 logements en accession, accompagnés de stationnements en sous-sol et de locaux vélos, répondant aux attentes des actifs et des familles en quête d'un cadre de vie équilibré.

Pensée en harmonie avec son environnement, la résidence s'inscrit dans un écrin paysager soigné, composé d'essences locales, d'espaces végétalisés et de cheminements doux. Un espace central convivial favorise les échanges entre résidents, dans une atmosphère apaisée et naturelle.
Le projet intègre une démarche environnementale avec des aménagements favorisant la biodiversité (nichoirs, hôtel à insectes), des sols perméables et des espaces partagés comme des zones de compostage et des carrés aromatiques.

Les appartements proposent des espaces lumineux, ouverts sur l'extérieur et orientés pour valoriser les vues sur les montagnes environnantes. Les prestations ont été sélectionnées avec exigence : grandes baies vitrées, matériaux durables et finitions soignées pour un confort au quotidien.
Les avantages du programme
Les + du programme :
•Environnement naturel et vues dégagées sur les montagnes
•Résidence paysagère favorisant la biodiversité
•Stationnements en sous-sol et locaux vélos
•Espaces extérieurs privatifs et coeur d'îlot aménagé
•Conception conforme à la réglementation RE2020

Au quotidien, profitez d'un cadre de vie pratique et dynamique :
•Commerces de proximité et marché local
•Écoles de la maternelle au lycée accessibles rapidement
•Équipements sportifs et culturels à proximité
•Bus reliant Annecy et pistes cyclables facilitant les déplacements
•Accès rapide au centre d'Annecy en voiture

Un cadre de vie rare entre nature, confort et proximité d'Annecy, idéal pour habiter durablement ou réaliser un premier achat.

Contactez-nous dès maintenant au 04 84 31 44 61 pour plus d'informations ou pour étudier votre projet immobilier.

* Offre promotionnelle valable du 01/03/2026 au 30/04/2026 inclus, dans la limite des stocks disponibles, sous rése

Autres logements - du programme "CELESTE"

Disponibilité Prix Genre Pièces Surface Étage
Voir
Disponible
677 000€ Appt. - 95.03m2 0-RDC
Voir
Disponible
302 400€ Appt. - 47.18m2 0-RDC
Voir
Disponible
302 400€ Appt. - 47.31m2 0-RDC
Voir
Disponible
302 900€ Appt. - 45.66m2 0-RDC
Voir
Disponible
307 400€ Appt. - 44.67m2 0-RDC
Voir
Disponible
307 400€ Appt. - 44.68m2 0-RDC
Voir
Optionné
312 400€ Appt. - 44.29m2 1er
Voir
Disponible
696 000€ Appt. - 111.7m2 1er
Voir
Disponible
312 400€ Appt. - 44.83m2 1er
Voir
Disponible
439 400€ Appt. - 66.92m2 2ème
Voir
Disponible
453 400€ Appt. - 71.83m2 2ème
Voir
Disponible
453 400€ Appt. - 73.04m2 2ème
Voir
Disponible
272 400€ Appt. - 33.07m2 2ème
Voir
Disponible
309 900€ Appt. - 43.32m2 0-RDC
Voir
Disponible
586 000€ Appt. - 84.51m2 0-RDC
Voir
Disponible
297 400€ Appt. - 43.53m2 0-RDC
Voir
Disponible
317 400€ Appt. - 44.38m2 0-RDC
Voir
Disponible
501 900€ Appt. - 65.55m2 0-RDC
Voir
Disponible
312 400€ Appt. - 40.98m2 0-RDC
Voir
Disponible
459 400€ Appt. - 66.78m2 1er
Voir
Disponible
452 400€ Appt. - 65.47m2 1er
Voir
Disponible
736 000€ Appt. - 117.55m2 1er
Voir
Disponible
322 400€ Appt. - 45.78m2 2ème
DO NOT CLICK